Terreno - BADERNA - 114.000 EUR
| Posizione | BADERNA, POREČ, Istria |
| Prezzo € | 114.000 |
| Superficie | 598 m2 |
| Distanza dal mare | 0 m |
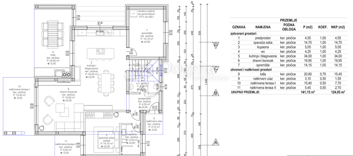
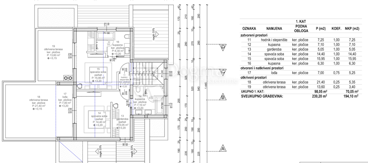
Non lontano da Parenzo, a soli 20 km, in un tranquillo ambiente rurale, è in vendita un terreno edificabile con un progetto per il quale è in corso di ottenere il permesso di costruire per una casa con una superficie totale di 195 m². La casa è progettata su un piano (P+1), quindi il piano terra è concepito come una parte abitativa della casa dove si trova 1 camera da letto con bagno, uno spazio aperto per la squadra che collega la cucina, il soggiorno e la sala da pranzo, e riporre la spesa sarà più semplice grazie ad un ampio ripostiglio di 14 m² situato proprio accanto alla cucina, c'è anche un bagno per gli ospiti per maggiore comfort e intimità. Le scale interne conducono al 1° piano, dove ci sono 2 camere da letto, ciascuna con il proprio bagno e terrazzo, mentre una camera avrà la propria cabina armadio. Al piano terra si trovano anche due spazi esterni coperti per la socializzazione, ovvero una terrazza e una loggia semichiusa con accesso alla zona solarium e alla piscina di 26 mq. La casa è progettata in modo tale che ci sia abbastanza luce naturale per risparmiare il più possibile l'elettricità. Il terreno della metratura complessiva di 598 mq ha forma regolare ed ha accesso direttamente dalla strada asfaltata. Il terreno appartiene all'area di costruzione, quindi tutte le infrastrutture necessarie si trovano accanto al terreno. Questa proprietà rappresenta un'opportunità eccezionale per costruire una casa di famiglia da sogno o un'opportunità per impegnarsi nel turismo. Da non perdere, reagisci oggi e prendi la decisione giusta! Per tutte le informazioni aggiuntive e le visite turistiche, contattateci con fiducia: FILIP MARIĆ Assistente alla mediazione Cellulare: +385 91/335-5350 filip.maric@dogma-nekretnine.com
ID: 987007