Terreno - BARBAN - 150.000 EUR
| Posizione | BARBAN, Istria |
| Prezzo € | 150.000 |
| Superficie | 1295 m2 |
| Distanza dal mare | 0 m |
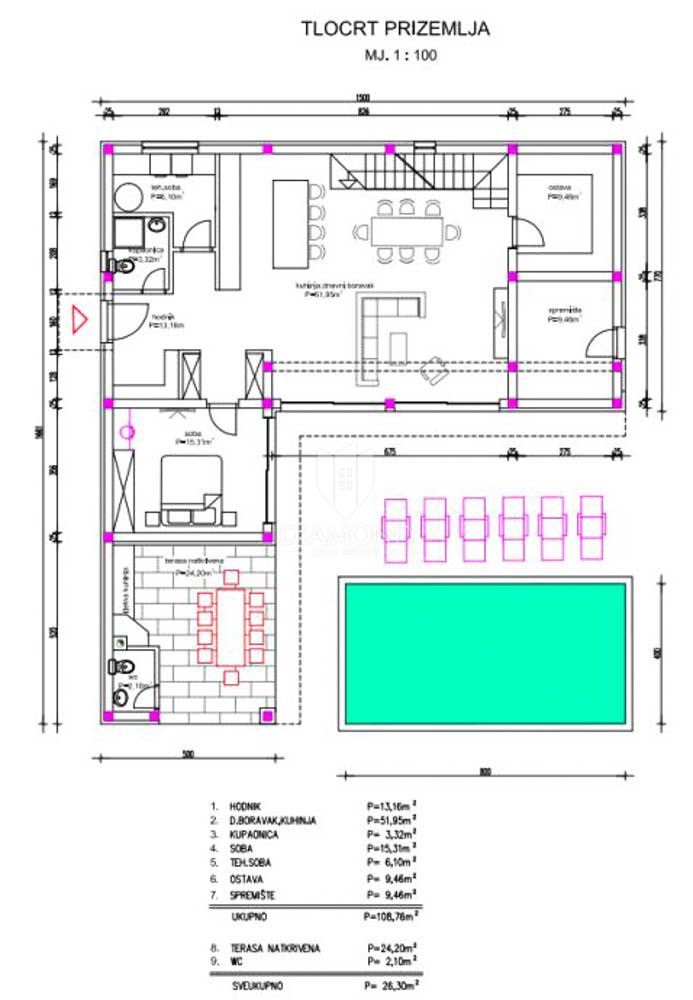
Istria, Barbana, dintorni Questo terreno si trova in un grazioso piccolo insediamento non lontano dal mare. Si trova alla fine di una strada tranquilla. Tutti i servizi necessari sono a pochi minuti di distanza e le prime spiagge sono a 5 minuti di auto dalla proprietà. Il terreno viene venduto con progetto per una casa con piscina. La casa ha un design moderno, si sviluppa su due piani. Dispone di un totale di 4 camere da letto e un ampio terrazzo di 65 mq al primo piano. È stata presentata domanda per il permesso di costruire, le infrastrutture necessarie si trovano a pochi metri dal terreno. La dimensione totale del terreno è di 1300 m2. Questo terreno è una vera opportunità per chi cerca un terreno vicino al mare. Anche un progetto che semplifica e accelera il processo è un grande vantaggio. Grande opportunità per chiunque abbia voglia di costruire.
ID: 1088245