Terreno - BARBAN - 55.000 EUR
| Posizione | BARBAN, Istria |
| Prezzo € | 55.000 |
| Superficie | 532 m2 |
| Distanza dal mare | 0 m |
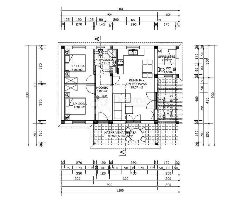
In vendita un terreno edificabile di 532 m², situato nella tranquilla zona di Barban, ideale per costruire una casa per le vacanze. Il terreno è dotato di permesso di costruire e utenze pagate, il che consente un rapido avvio dei lavori. Secondo la documentazione di progetto predisposta, la struttura progettata è composta da due camere da letto, un ampio bagno, una toilette, una cucina con sala da pranzo, un ripostiglio e una terrazza coperta, offrendo uno spazio piacevole per la famiglia e gli amici. Il progetto comprende inoltre una piscina di 20 m², perfetta per godersi i mesi estivi. Il terreno è ubicato lungo una comoda strada di accesso e tutti gli allacciamenti necessari per elettricità, acqua e telefono si trovano proprio accanto al terreno, il che rende la costruzione semplice e veloce. La posizione è estremamente tranquilla e riservata, ma vicina a tutti i servizi necessari. Questo terreno rappresenta un'ottima opportunità per costruire una piccola casa vacanze con piscina, dove potrete godervi il silenzio della natura, il tutto a pochi minuti di macchina dal centro di Barban. Ideale per una famiglia o per un investimento nel turismo.
ID: 1193785