Terreno - BARBAN - 58.000 EUR
| Posizione | BARBAN, Istria |
| Prezzo € | 58.000 |
| Superficie | 589 m2 |
| Distanza dal mare | 12000 m |
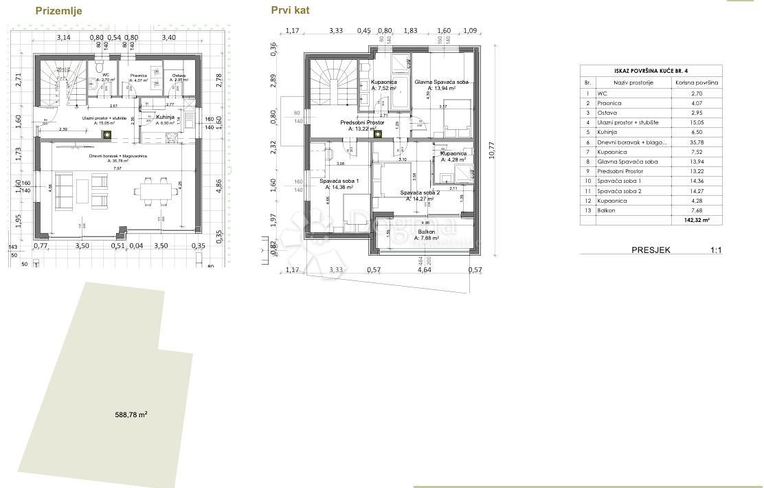
In vendita terreno edificabile di 589 m², situato a soli 5 km da Barban e 12 km dal mare. La posizione è idilliaca, immersa nel verde e in un tranquillo villaggio con alcune eleganti case vacanza – perfetto per uso residenziale o investimento turistico. Il terreno si trova in una zona residenziale edificabile, con accesso diretto da strada asfaltata. Tutte le infrastrutture sono vicine – acqua ed elettricità si trovano a soli 20 metri, presso la prima casa vicina. Tutti i servizi si trovano a Barban, a soli 8 minuti in auto, mentre le prime spiagge si raggiungono in circa 20 minuti. Per il terreno è già stato realizzato un progetto preliminare per una villa moderna a due piani con dettagli mediterranei. La villa prevede piscina, tre camere da letto, tre bagni e vista mare. Il progetto è ben pensato per offrire massimo comfort e funzionalità. L’acquirente può mantenere il progetto esistente o svilupparne uno nuovo secondo i propri desideri. Il terreno dispone di tutta la documentazione necessaria, inclusa l’informazione urbanistica. Proprietà in regola, senza vincoli. È consentita la costruzione di piano terra e due piani superiori, con un massimo di tre unità abitative – ideale per una casa familiare, villa per vacanze o piccolo complesso residenziale. Per ulteriori informazioni, documentazione o per organizzare una visita, non esitate a contattarmi.
ID: 1205543