Casa - BIBALI - 99.000 EUR
| Posizione | BIBALI, BUJE, Istria |
| Prezzo € | 99.000 |
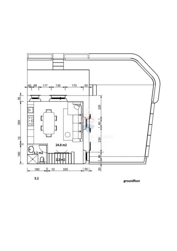
| Superficie | 120 m2 |
| Numero di camere | 4 |
| Distanza dal mare | 0 m |
RE/MAX Centar nekretnina propone in vendita una casa in pietra autentica situata in un tranquillo villaggio vicino a Buje, nell'Istria nord-occidentale. La casa ha una superficie di 120 m² distribuiti su tre piani – piano terra, primo piano e mansarda – e rappresenta un'opportunità unica per chi cerca una dimora istriana tradizionale con grande potenziale. L'immobile necessita di una ristrutturazione completa ma viene venduto con un progetto approvato e un piano concettuale già pronti, semplificando notevolmente l'intero processo per l'acquirente. Il progetto prevede al piano terra un ampio soggiorno, una cucina con zona pranzo e un bagno con doccia. Al primo piano ci sono due camere da letto e un secondo bagno, mentre la mansarda offre altre due camere da letto. Davanti alla casa si trova una terrazza ideale per momenti di relax. Dal piano superiore si apre una vista panoramica mozzafiato sulle colline circostanti, la natura incontaminata, il mare e, nelle giornate limpide, perfino sulle Alpi. Questa vista unica conferisce ulteriore valore alla proprietà. L’architettura tradizionale istriana, i muri in pietra e gli elementi autentici conferiscono alla casa un fascino unico. Si trova su un terreno di 50 m² ed è perfetta come residenza permanente, casa vacanze o per affitto turistico. I lavori saranno eseguiti da un’impresa edile rinomata e il costo totale della ristrutturazione è disponibile su richiesta. Il prezzo stimato della casa completamente ristrutturata con formula "chiavi in mano" è inferiore a 200.000 euro, un’offerta molto competitiva. La posizione offre un perfetto equilibrio tra tranquillità e vicinanza ai servizi. Buje è famosa per il suo patrimonio culturale, le strade del vino, i ristoranti eccellenti e la vicinanza al mare Adriatico. Un’occasione ideale per coniugare tradizione e comfort moderno.
ID: 1203039