Casa - BILICE - 610.000 EUR
| Posizione | BILICE, ŠIBENIK, Sebenico-Dalmazia |
| Prezzo € | 610.000 |
| Superficie | 290 m2 |
| Numero di camere | 5 |
| Superficie terrestre | 480 m2 |
| Bagni | 4 |
| Distanza dal mare | 4000 m |
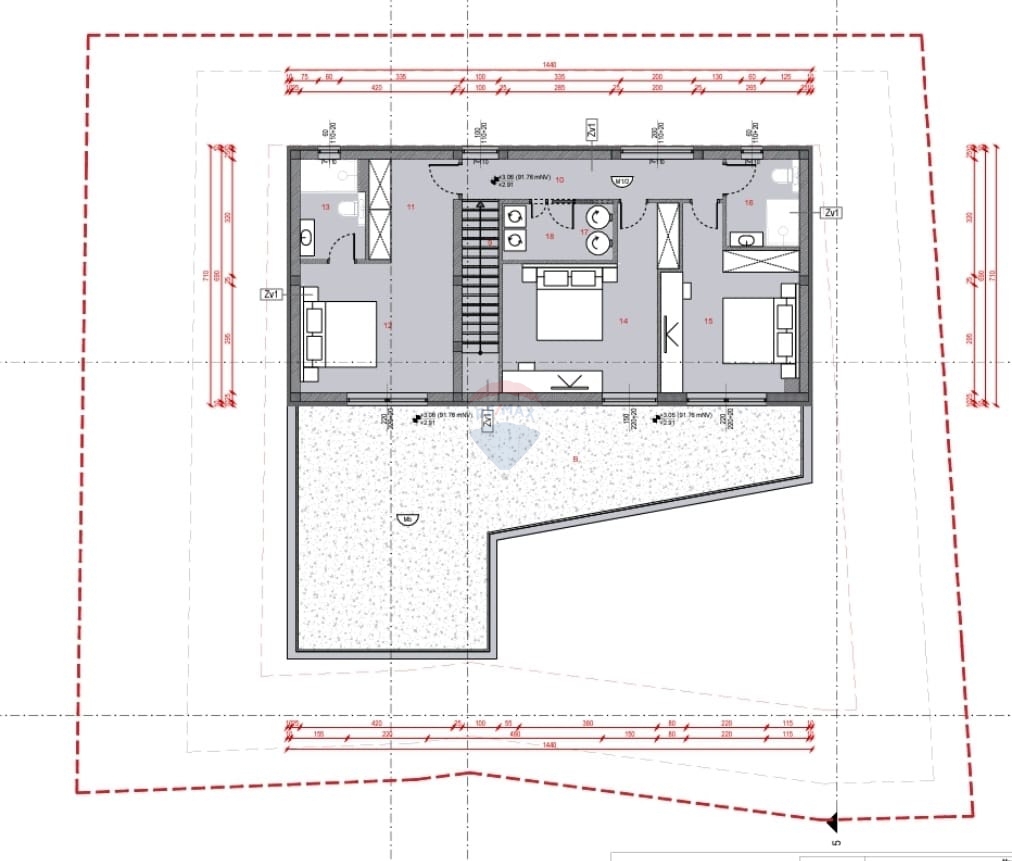
ŠIBENIK - BILICE - Lussuosa villa indipendente con piscina e cucina estiva! Questa interessante proprietà si trova nel tranquillo insediamento di Bilice, vicino a Šibenik. La posizione ti consente di allontanarti dal trambusto della città, ma sei a meno di 10 minuti di auto da tutti i servizi che offre la città di Sebenico. La villa è un progetto moderno dal design accattivante. Sarà costruito su un terreno di 480 m2. E' stata presentata la documentazione per la concessione edilizia. L'inizio previsto della costruzione è nel 2024 e il completamento dei lavori nel giugno 2025. È stata concepita come una villa familiare con piscina e cucina estiva. Il numero di piani previsto dell'edificio in oggetto è il piano terra e il primo piano (P+1). Il tetto sarà costruito come un timpano inclinato e sopra la cucina estiva come una terrazza piana calpestabile. Il piano terra sarà composto da ingresso, bagno con sauna, palestra, cucina con sala da pranzo e soggiorno. Tramite scala interna si accede al primo piano dove troviamo un disimpegno, una lavanderia, una camera con proprio bagno, 2 camere ed un bagno. Per la costruzione e l'arredamento verranno utilizzati materiali di prima qualità. Gli infissi esterni saranno realizzati con profili di falegnameria in alluminio e vetro di ultima generazione che soddisfano i più elevati standard energetici e meccanici. Le finestre sono dotate di zanzariere e oscuranti elettrici. La porta d'ingresso è antieffrazione. Isolamento della casa con lana di roccia da 10 cm. La piscina avrà dimensioni 8x4 m e profondità 1,4 m. Bilice Stubalj è un piccolo paese vicino al Parco nazionale della Krka, sul lago Prokljan, aperto e collegato al fiume Krka e al mare. Nel villaggio c'è un piccolo porto per le navi. È ben collegato dal traffico, è molto vicino all'autostrada, e gli aeroporti di Zara e Spalato si trovano a una distanza di circa 50 km. Per ulteriori informazioni e per organizzare una visita, contattare l'agente.
ID: 1008649