Appartamento - BRODARICA - 190.000 EUR
| Posizione | BRODARICA, ŠIBENIK, Sebenico-Dalmazia |
| Prezzo € | 190.000 |
| Superficie | 62 m2 |
| Numero di camere | 2 |
| Bagni | 2 |
| Vicino ai trasporti | Si |
| Distanza dal mare | 50 m |
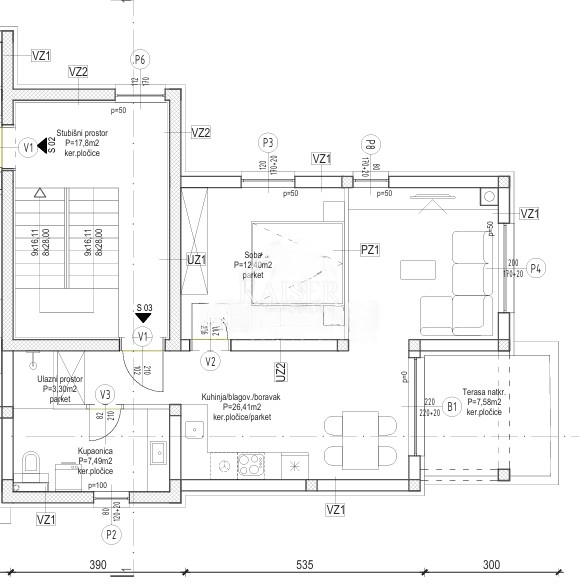
Kaiser Immobilien presenta con orgoglio questo nuovo edificio in un'eccellente posizione in una tranquilla zona residenziale di Sebenico, Brodarica, dove sono in costruzione due edifici residenziali più piccoli con un totale di 12 appartamenti, di cui 6 con una camera da letto e 6 con due camere da letto. Gli edifici sono di alta qualità costruttiva e dal design moderno, ideali per vivere, trascorrere le vacanze o investire. La documentazione è in regola e gli appartamenti sono dotati di loggia, posti auto e ripostiglio, che ne aumentano ulteriormente la funzionalità e l'attrattiva. Appartamento con una camera da letto al primo piano con una superficie abitabile di 49,60 m2 L'appartamento si trova al primo piano di un moderno edificio residenziale e la superficie abitabile totale è di 49,60 m2. Si estende attraverso un ingresso (3,30 m2), cucina e sala da pranzo (14,68 m2), soggiorno (11,39 m2), bagno (7,49 m2) e camera da letto (12,40 m2). Gli spazi ampi e luminosi offrono una disposizione confortevole, perfetta per la vita di tutti i giorni. Oltre agli spazi interni, l'appartamento dispone anche di una loggia coperta di 7,58 m², ideale per godersi l'aria fresca o rilassarsi con vista sui dintorni. L'appartamento è dotato di aria condizionata in ogni stanza, parquet in soggiorno e camera da letto e riscaldamento a pavimento in bagno. Ulteriori pregi includono due posti auto (uno coperto) e un ripostiglio nel seminterrato dell'edificio (6,46 m²). Il completamento dei lavori e l'ingresso sono previsti entro la fine del 2025. Brodarica è ben collegata a Sebenico (a soli 8 minuti di auto), mentre la famosa spiaggia di Rezalište è raggiungibile in pochi minuti a piedi. Nella zona sono presenti una scuola, un asilo, negozi e mezzi pubblici. Questo insediamento offre una vita tranquilla e di qualità, mentre la vicinanza del mare e della spiaggia offre condizioni eccellenti per vacanze in famiglia e attività ricreative. Spiaggia più vicina - / 5 minuti Aeroporto di Zara - Zemunik - 70 km / 50 minuti Aeroporto di Spalato - 52 km / 40 minuti Zagabria: 350 km / 3 ore Lubiana: 384 km / 4 ore Vienna: 694 km / 6 ore Monaco: 790 km / 8 ore Budapest: 683 km / 6 ore La commissione di agenzia per l'acquirente è del 3% + IVA. La commissione copre tutti i servizi relativi all'acquisto e viene pagata solo in caso di acquisto di un immobile, alla conclusione del primo atto legale. Per ulteriori informazioni, si prega di contattare: Ivana Skoblar Tel: +385 98 973 11 54 E-mail: ivana.skoblar@kaiser-immobilien.hr Codice immobile: 136-11
ID: 1206002