Appartamento - BRODARICA - 215.000 EUR
| Posizione | BRODARICA, ŠIBENIK, Sebenico-Dalmazia |
| Prezzo € | 215.000 |
| Superficie | 68 m2 |
| Numero di camere | 3 |
| Bagni | 2 |
| Distanza dal mare | 0 m |
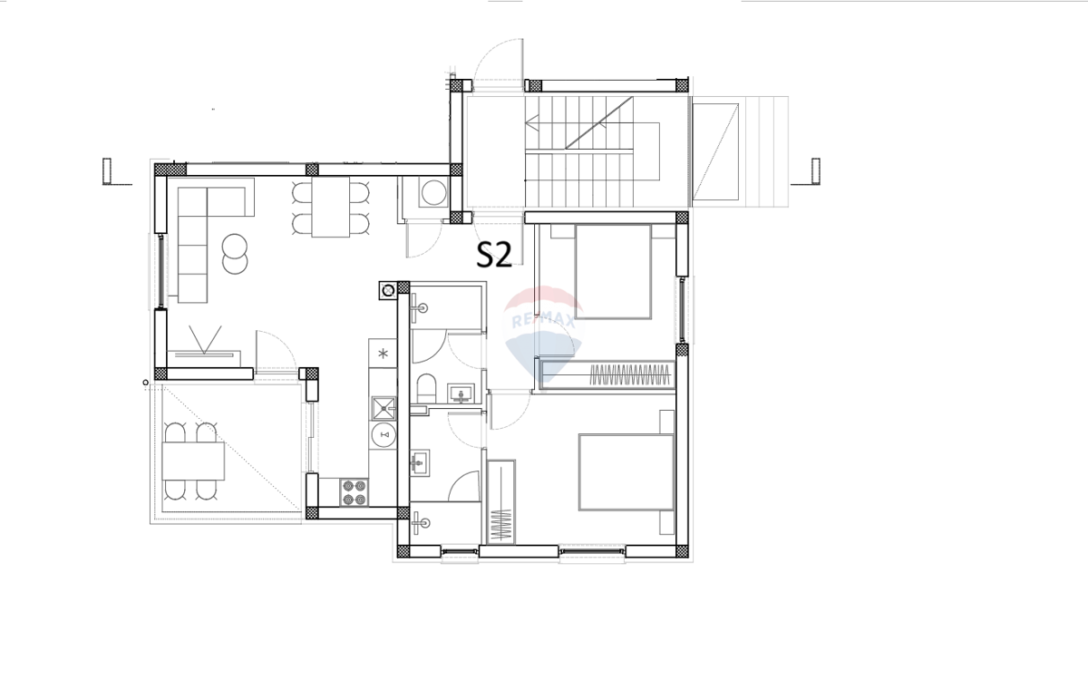
Brodarica - nuova costruzione Al secondo piano di un edificio con un totale di 6 appartamenti, è in vendita un appartamento S2 con una superficie abitabile di 68,31 m². L'appartamento è composto da un corridoio (5,73 m²), una cucina con sala da pranzo e soggiorno in un'unica unità (23,84 m²), 2 camere da letto (12,44 m²; 9,83 m²), di cui una con bagno privato di 3,67 m², un bagno con WC (4,2 m²) e un ripostiglio di 0,9 m². Il soggiorno si apre su una terrazza di 7,70 m². L'edificio si trova in una posizione eccellente a Brodarica, vicino a tutti i servizi principali (scuole, asili, negozi...). Il mare e una spiaggia ben curata con lungomare distano 400 m. Ogni camera è dotata di aria condizionata e il riscaldamento a pavimento nei bagni e nel soggiorno offre ulteriore comfort. Elementi sanitari di marchi noti come Kronenbach, Laufen, Roca, Hansgrohe, ecc. La preparazione dell'acqua calda e la lavatrice si trovano in un locale separato e non sono integrate nel bagno. Le finestre, con un coefficiente termico inferiore a 0,9 W/m²K e dotate di tapparelle elettriche e zanzariere, offrono una protezione termica ottimale sia in estate che in inverno. L'edificio offre due posti auto riservati, che possono essere dotati di una stazione di ricarica elettrica a pagamento. Tutte e 6 le unità abitative saranno dotate di materiali di alta qualità: Isolamento termico della facciata, di almeno 10 cm di spessore Porte esterne antieffrazione e tagliafuoco di un produttore rinomato Profilo in PVC di qualità a 6 camere, nero all'esterno/bianco all'interno con un valore UW inferiore a 0,9 W/m²K, con tapparelle elettriche e zanzariere. Ringhiere in vetro per balconi. Riscaldamento a pavimento in bagno Sanitari di noti produttori come Laufen, Roca, Hansgrohe, ecc. Piastrelle per pavimenti e rivestimenti moderne ed eleganti Opzioni e requisiti aggiuntivi, come una stazione di ricarica per veicoli elettrici, sono disponibili su richiesta e a un costo aggiuntivo. Questo progetto rappresenta un'eccellente opportunità per chi cerca un ambiente tranquillo con tutti i comfort della vita moderna. L'immagine 3D e le condizioni reali potrebbero non corrispondere a quelle dell'annuncio. Descrizione dell'ambiente Brodarica è un villaggio tranquillo e piacevole situato a soli 5 km a sud di Sebenico e la cui costa prosegue fino a una delle località turistiche più famose dell'Adriatico: Solaris (Amadria Park). Brodarica è un villaggio di ville e case private, adatto per vacanze in famiglia e per soggiorni durante tutto l'anno. Pittoresche spiagge sabbiose e rocciose, tra cui spicca la recentemente ristrutturata Rezalište. Quasi tutta la costa di Brodarica offre una vista sulla pittoresca isola di Krapanj. Il Parco Nazionale di Krka dista 16 km. L'aeroporto di Spalato è a 50 km, mentre quello di Zara a 85 km. Non esitate a contattarci per ulteriori informazioni.
ID: 1185351