Terreno - BUJE - 205.600 EUR
| Posizione | BUJE, Istria |
| Prezzo € | 205.600 |
| Superficie | 1285 m2 |
| Superficie terrestre | 1285 m2 |
| Vicino ai trasporti | Si |
| Vicino alla spiaggia | Si |
| Distanza dal mare | 6000 m |
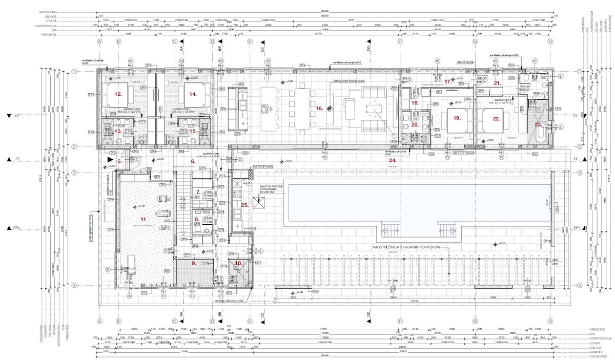
In una zona tranquilla nei pressi di Buie, vicino al confine con la Slovenia, è in vendita un terreno edificabile di 1.285 m² con progetto concettuale pronto per la presentazione della richiesta del permesso di costruire. Circondato da poche case e dalla natura incontaminata dell’Istria, il terreno offre grande privacy e condizioni ideali per la costruzione di una villa moderna. Il progetto prevede una villa elegante e contemporanea, sviluppata su un unico piano, progettata per offrire il massimo comfort e funzionalità. Dispone di quattro ampie camere da letto, un grande soggiorno open space, una zona fitness e una lussuosa piscina esterna di 70 m², pensata come fulcro della zona relax. Grazie alla posizione, alla dimensione del terreno e alla documentazione già predisposta, questa proprietà rappresenta un’ottima opportunità per realizzare una moderna residenza privata o un investimento immobiliare in una delle aree più ricercate dell’Istria nord-occidentale.
ID: 1242523