Terreno - CASKA - 200.000 EUR
| Posizione | CASKA, NOVALJA, Ličko-senjska |
| Prezzo € | 200.000 |
| Superficie | 473 m2 |
| Distanza dal mare | 200 m |
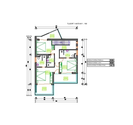
Kaiser immobilien media la vendita del terreno con permesso di costruzione valido e si trova in una posizione unica, nella città di Caska sull'isola di Pag, a 200 metri dal mare. Caska è una cittadina tranquilla e ricca di storia situata nell'omonima baia, situata nella parte occidentale della baia di Paška, nelle immediate vicinanze di Novalja. Sul territorio di questa cittadina ricca di storia un tempo si trovava Cissa, una città romana che, secondo gli storici, affondò nel IV secolo a causa di un terremoto. Oggi nella baia di Caska ci sono solo poche case, ma sul suo fondale marino c'è una città sommersa. Il terreno con una superficie totale di 473 mq ha una forma regolare e si trova in un quartiere tranquillo, vicino al mare. Il prezzo del terreno comprende un permesso di costruzione valido, la predisposizione per acqua, elettricità e drenaggio, nonché i muri di cinta costruiti. Il futuro edificio offre una splendida vista sul mare e il grande vantaggio è che la costruzione dell'edificio può essere avviata immediatamente, senza attendere i permessi. Ulteriori dettagli: - È stato rilasciato il permesso per la costruzione di una moderna villa con piscina, piano terra + primo piano, per un totale di 168 m2 di superficie utile abitabile - Al piano terra: disimpegno, bagno, lavanderia, open-concept zona giorno, terrazzo coperto, per un totale di 81 mq - Al piano superiore: disimpegno, tre camere, tre bagni, terrazzo coperto, per un totale di 87 mq - Piscina 6x3m e due posti auto - In accordo con il venditore è possibile anche la realizzazione chiavi in mano nelle mani". La provvigione di agenzia per l'acquirente è del 3% + IVA e viene pagata in caso di acquisto di immobile, alla conclusione del primo atto legale. CODICE IDENTIFICAZIONE 105-278
ID: 1141489