Appartamento - ČIŽIĆI - 265.000 EUR
| Posizione | ČIŽIĆI, KRK, Quarnaro |
| Prezzo € | 265.000 |
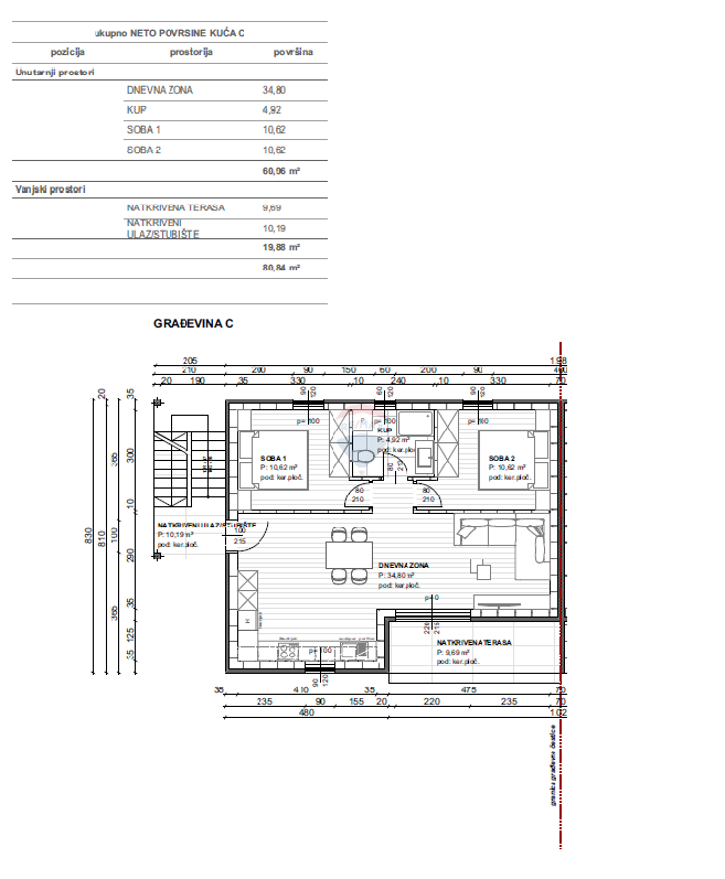
| Superficie | 80 m2 |
| Numero di camere | 3 |
| Bagni | 1 |
| Distanza dal mare | 0 m |
Remax Centar Nekretnina individua un appartamento con due camere da letto di 80 m², situato in un nuovo edificio a Čižići, sull'isola di Krk. Questa proprietà offre uno spazio abitativo confortevole e funzionale in una posizione tranquilla, ideale per chi vuole essere vicino al mare e lontano dal trambusto della città. L'appartamento comprende: -Soggiorno collegato alla cucina e alla sala da pranzo -Due camere da letto -Bagno con riscaldamento a pavimento -Terrazza coperta -Posto auto custodito L'appartamento si trova in una posizione tranquilla, e a pochi minuti a piedi dalla bellissima spiaggia di Čižići. Questa zona è nota per il suo mare limpido, il fango curativo nella vicina baia di Soline, l'atmosfera rilassata, ideale per una vacanza o un soggiorno tutto l'anno. Gli ambienti climatizzati, la posizione dell'immobile e la qualità della costruzione garantiscono comfort e sicurezza a lungo termine. Questo nuovo edificio è attualmente in costruzione e la fine dei lavori è prevista per il 7° mese del 2025.
ID: 1158400