Appartamento - CRES - 312.000 EUR
| Posizione | CRES, Quarnaro |
| Prezzo € | 312.000 |
| Superficie | 75 m2 |
| Numero di camere | 2 |
| Superficie terrestre | 64 m2 |
| Bagni | 1 |
| Distanza dal mare | 300 m |
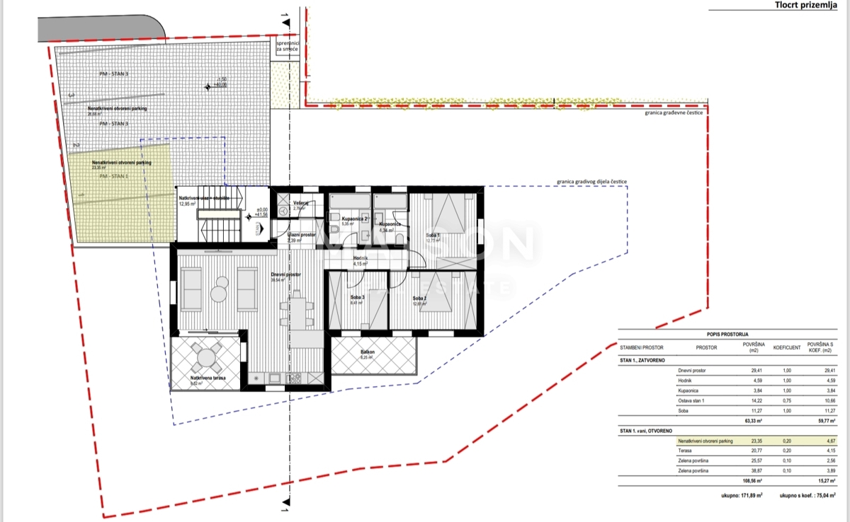
In una posizione attraente nella città di Cherso, vendiamo l'appartamento S1 al piano terra di una moderna nuova costruzione, ideale per una vita familiare tranquilla o come investimento turistico. L'appartamento ha una superficie totale di 75,04 m² e si compone di una camera da letto, soggiorno con cucina e zona pranzo, corridoio e bagno. Dal soggiorno si accede a un'ampia terrazza di 20,77 m², e l'appartamento è arricchito da un giardino di 64,44 m² che offre privacy e piacere all'aperto. L'appartamento dispone di riscaldamento a pavimento nel bagno e condizionatori d'aria per il riscaldamento e il raffreddamento nelle altre stanze, garantendo un soggiorno confortevole tutto l’anno. Inclusi nell'offerta vi sono anche un posto auto esterno e un ripostiglio, che aumentano la funzionalità e il comfort. Il completamento dei lavori è previsto per il 2026, e l’edificio sarà costruito secondo i moderni standard di efficienza energetica e qualità. Questa proprietà rappresenta un’eccellente opportunità per chi cerca un appartamento nuovo e di qualità in una delle zone più ambite dell’isola di Cherso. Per ulteriori informazioni e una presentazione dettagliata, non esitate a contattarci. Maison – perché la casa non è solo un luogo, ma uno stile di vita.
ID: 1191143