Appartamento - CRES - 315.000 EUR
| Posizione | CRES, Quarnaro |
| Prezzo € | 315.000 |
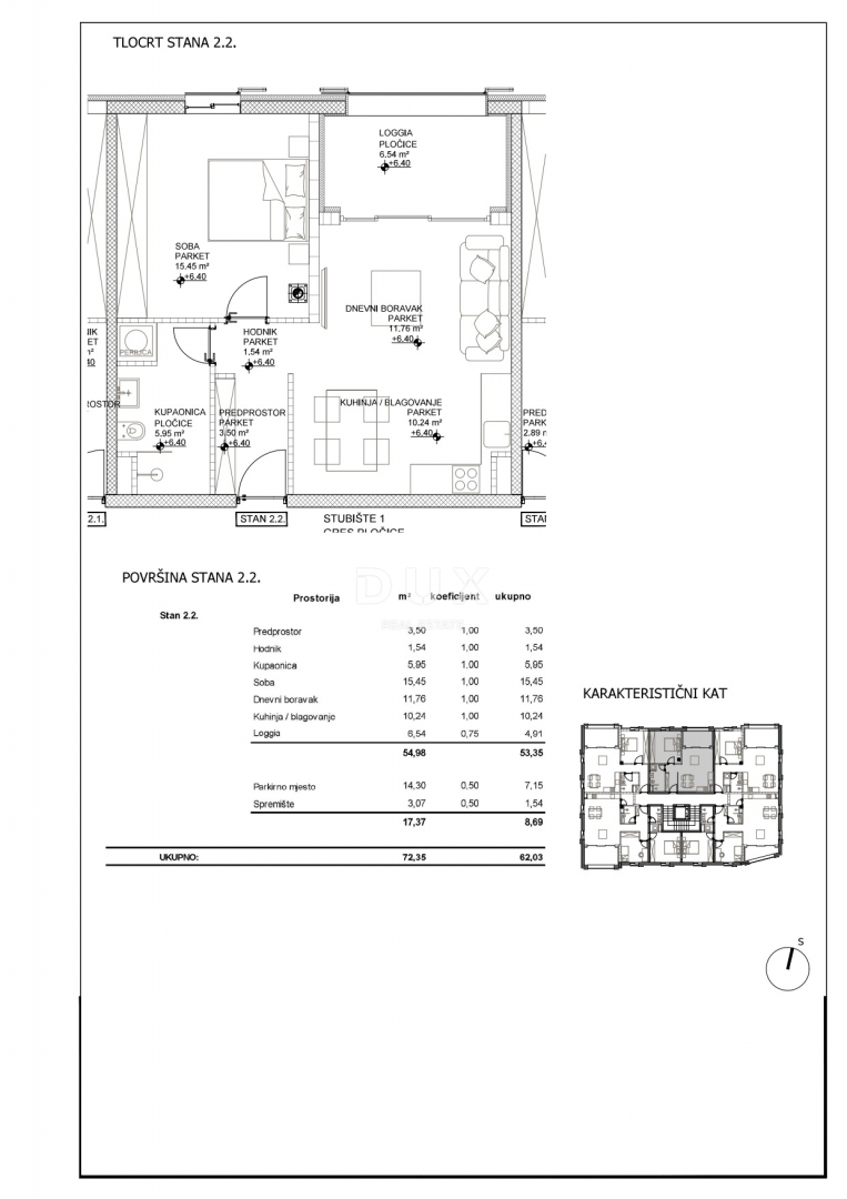
| Superficie | 73 m2 |
| Numero di camere | 2 |
| Bagni | 1 |
| Vicino ai trasporti | Si |
| Distanza dal mare | 50 m |
ISOLA DI CHERSO, COMUNE DI CHERSO - Appartamento con 1 camera da letto e soggiorno in un edificio di nuova costruzione in una posizione privilegiata, nel centro città a 50 metri dal mare. Vendiamo un appartamento con una camera da letto e un soggiorno contrassegnato con il numero 2.2 al secondo piano di un edificio residenziale di nuova costruzione in una posizione fenomenale e unica. L'appartamento è composto da un ingresso, una zona giorno open space con cucina e sala da pranzo con accesso alla loggia, una camera da letto e un bagno per una superficie abitabile netta totale di 54,98 m². L'appartamento è dotato di un posto auto in garage di 14,30 m² e di un ripostiglio in garage di 3,07 m². Questo splendido edificio residenziale e commerciale con ascensore e garage sotterraneo è nella prima fase di costruzione ed è progettato per 14 unità abitative con appartamenti con una e due camere da letto. Gli appartamenti saranno venduti chiavi in mano e le dotazioni saranno di alto livello, tra cui riscaldamento a pavimento, condizionatori inverter, pavimenti e parquet di prima qualità, bagni walk-in e sanitari di alta qualità di rinomati produttori. Una rarità nell'offerta, una posizione unica. Gentili clienti, la commissione d'agenzia viene addebitata in conformità con i Termini e Condizioni Generali www.dux-nekretnine.hr/opci-uvjeti-poslovanja
ID: 1247548