Appartamento - CRES - 315.000 EUR
| Posizione | CRES, Quarnaro |
| Prezzo € | 315.000 |
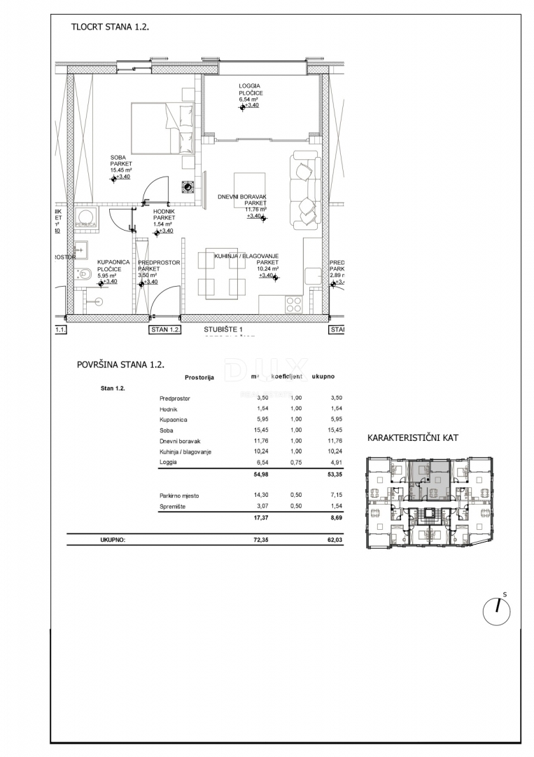
| Superficie | 72 m2 |
| Numero di camere | 2 |
| Bagni | 1 |
| Vicino ai trasporti | Si |
| Distanza dal mare | 50 m |
ISOLA DI CHERSO, CITTÀ DI CHERSO - Appartamento con 1 camera da letto e bagno in un magnifico edificio di nuova costruzione in posizione privilegiata, in pieno centro a 50 metri dal mare. Vendiamo un monolocale con soggiorno, contrassegnato con il numero 1.2, al primo piano di un nuovo edificio residenziale di alta qualità in una posizione fenomenale e irripetibile. L'appartamento è composto da ingresso, soggiorno open space con cucina e sala da pranzo con accesso alla loggia, una camera da letto e un bagno per una superficie totale di 54,98 m². L'appartamento di proprietà dispone di un posto auto in garage e di un ripostiglio in garage. Questo splendido edificio residenziale e commerciale con ascensore e garage sotterraneo è nella prima fase di costruzione ed è progettato per 14 unità abitative con appartamenti con una o due camere da letto. Gli appartamenti saranno venduti chiavi in mano e le dotazioni saranno di alto livello, tra cui riscaldamento a pavimento, condizionatori inverter, pavimenti e parquet di prima qualità, bagni walk-in e sanitari di alta qualità di rinomati produttori. Offerta rara, posizione unica. Gentili clienti, la commissione di agenzia verrà addebitata in conformità con i Termini e Condizioni Generali www.dux-nekretnine.hr/opci-uvjeti-poslovanja
ID: 1247552