Appartamento - CRES - 325.000 EUR
| Posizione | CRES, Quarnaro |
| Prezzo € | 325.000 |
| Superficie | 74 m2 |
| Numero di camere | 2 |
| Bagni | 1 |
| Vicino ai trasporti | Si |
| Distanza dal mare | 50 m |
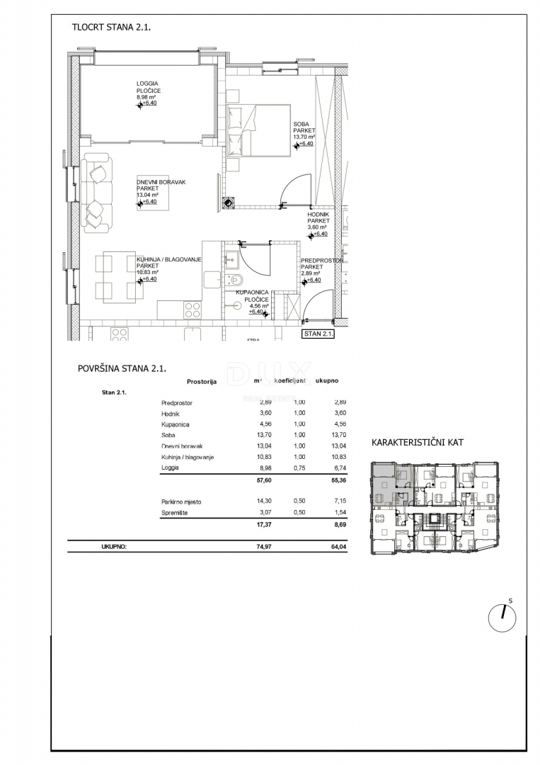
ISOLA DI CHERSO, CITTÀ DI CHERSO - Appartamento con 1 camera da letto e bagno in un magnifico edificio di nuova costruzione in posizione privilegiata, in pieno centro a 50 metri dal mare. Vendiamo un monolocale con soggiorno, contrassegnato con il numero 2.1, al secondo piano di un edificio residenziale di nuova costruzione di alta qualità, in una posizione fenomenale e irripetibile. L'appartamento è composto da un ingresso, una zona giorno open space con cucina e sala da pranzo con accesso alla loggia, una camera da letto e un bagno, per una superficie abitabile netta totale di 57,60 m². L'appartamento di proprietà dispone di un posto auto in garage di 14,03 m² e di un ripostiglio in garage di 3,07 m². Questo splendido edificio residenziale e commerciale con ascensore e garage sotterraneo è nella prima fase di costruzione ed è progettato per ospitare 14 unità abitative, tra monolocali e bilocali. Gli appartamenti saranno venduti chiavi in mano e le dotazioni saranno di alto livello, tra cui riscaldamento a pavimento, condizionatori inverter, pavimenti e parquet di prima qualità, bagni walk-in e sanitari di alta qualità di rinomati produttori. Una rarità nell'offerta, una posizione unica. Gentili clienti, la commissione d'agenzia viene addebitata in conformità con i Termini e Condizioni Generali www.dux-nekretnine.hr/opci-uvjeti-poslovanja
ID: 1247549