Tutti tipi
Case
Appartamenti
Terreni
Uffici
Provincia
...
Istria
Quarnaro
Spalato-Dalmazia-Sud
Ragusa
Sebenico-Dalmazia
Zara-Dalmazia-Nord
Zagabria
Bjelovarsko-bilogorska
Brodsko-posavska
Karlovac
Koprivniško-križevska
Krapinsko-zagorska
Ličko-senjska
Međimurje
Osijek-Baranja
Požeško-slavonska
Sisačko-moslavačka
Varaždinska
Virovitiško-podravska
Vukovarsko-srijemska
Zagabria-Dintorni
Comune
...
KRK
BAKAR
KRALJEVICA
RIJEKA
FUŽINE
RAB
NOVI VINODOLSKI
MRKOPALJ
MALI LOŠINJ
CRES
DELNICE
SKRAD
VRBOVSKO
MATULJI
KLANA
VINODOLSKA OPĆINA
KASTAV
BROD MORAVICE
MOŠĆENIČKA DRAGA
ČAVLE
CRIKVENICA
ČABAR
OPATIJA
KOSTRENA
JELENJE
LOKVE
VIŠKOVO
RAVNA GORA
LOVRAN
CittÃ
...
BELI
CRES
LOZNATI
MALI PODOL
MARTINŠĆICA
MIHOLAŠĆICA
ORLEC
STIVAN
SVETI PETAR
VALUN
VODICE
Tipo
Tutti
Case
Appartamenti
Terreni
Uffici
Prezzo
da
a
Distanza dal mare (m)
da
a
Criterio
Più recenti
Meno recenti
Più costosi
Meno costosi
Cerca
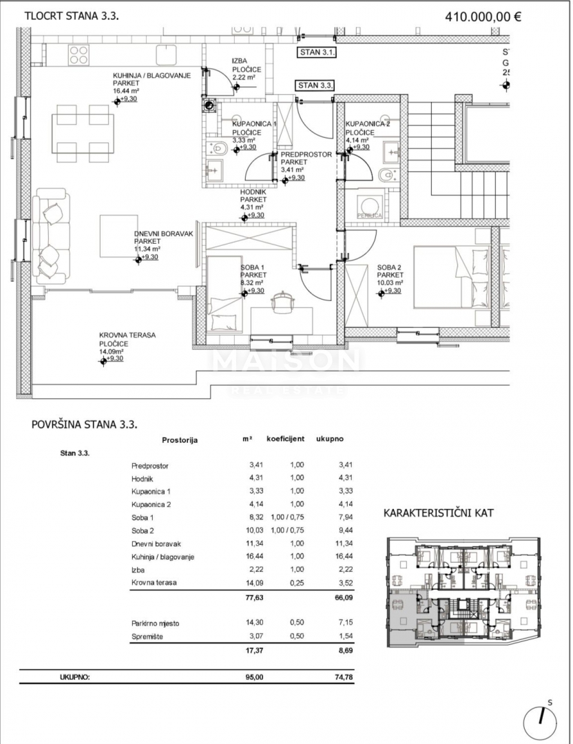
Appartamento - CRES - 410.000 EUR
Previous
Next
Posizione
CRES, Quarnaro
Prezzo €
410.000
Superficie
95 m
2
Numero di camere
3
Bagni
2
Vicino ai trasporti
Si
Distanza dal mare
50 m
ID: 1249989
Invia messaggio
Nome
E-mail
Tel.
2 + 3 =
Messaggio
Invia
Annulla