Appartamento - CRES - 415.000 EUR
| Posizione | CRES, Quarnaro |
| Prezzo € | 415.000 |
| Superficie | 101 m2 |
| Numero di camere | 3 |
| Bagni | 2 |
| Vicino ai trasporti | Si |
| Distanza dal mare | 50 m |
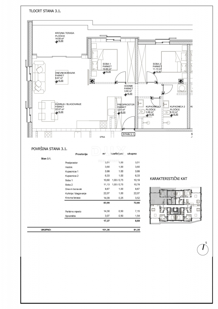
ISOLA DI CHERSO, COMUNE DI CHERSO - Appartamento con 2 camere da letto e soggiorno in un edificio di nuova costruzione in una posizione privilegiata, nel centro città a 50 metri dal mare. Vendiamo un appartamento con due camere da letto e soggiorno, contrassegnato con il numero 3.1, al terzo piano di un edificio residenziale di nuova costruzione in una posizione fenomenale e unica. L'appartamento è composto da ingresso, ripostiglio, bagno per gli ospiti, bagno, zona giorno open space con cucina e sala da pranzo con accesso alla terrazza sul tetto e due camere da letto, anch'esse con accesso alla terrazza sul tetto, per una superficie abitabile netta totale di 84 m². L'appartamento è dotato di un posto auto in garage di 14,30 m² e di un ripostiglio in garage di 3,07 m². Questo splendido edificio residenziale e commerciale, dotato di ascensore e garage sotterraneo, è nella prima fase di costruzione ed è progettato per ospitare 14 unità abitative, tra monolocali e trilocali. Gli appartamenti saranno venduti chiavi in mano e le dotazioni saranno di alto livello, tra cui riscaldamento a pavimento, condizionatori inverter, pavimenti e parquet di prima qualità, bagni walk-in e sanitari di alta qualità di rinomati produttori. Una rarità nell'offerta, una posizione unica. Gentili clienti, la commissione d'agenzia viene addebitata in conformità con i Termini e Condizioni Generali www.dux-nekretnine.hr/opci-uvjeti-poslovanja
ID: 1247545