Appartamento - CRIKVENICA - 499.000 EUR
| Posizione | CRIKVENICA, Quarnaro |
| Prezzo € | 499.000 |
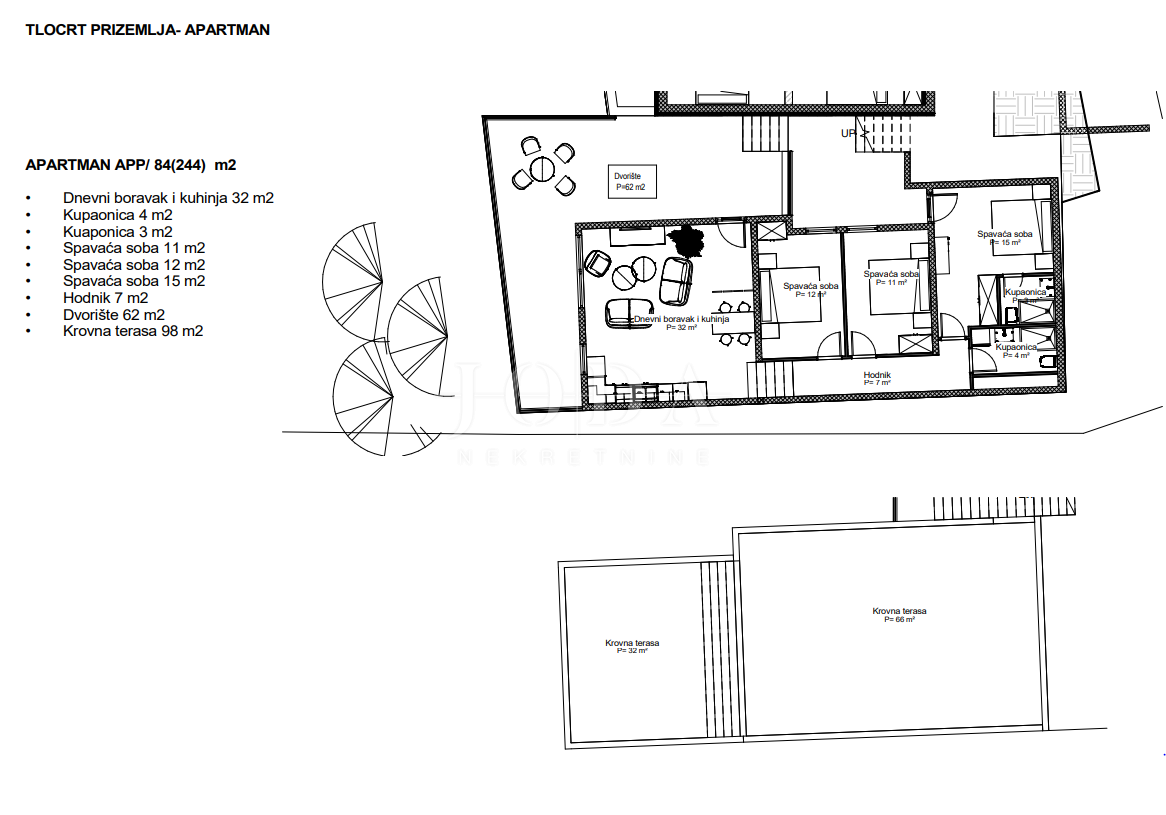
| Superficie | 150 m2 |
| Numero di camere | 4 |
| Superficie terrestre | 200 m2 |
| Bagni | 3 |
| Distanza dal mare | 300 m |
ESCLUSIVA CASA AL PIANO TERRA CON TERRAZZA PANORAMICA E VISTA MARE – CRIKVENICA In una posizione privilegiata sopra la spiaggia principale di Crikvenica, a soli 300 metri dal mare e dal centro, è in vendita questa eccezionale proprietà indipendente. Una casa moderna con comfort di lusso e assoluta privacy, perfetta per chi desidera vivere vicino a tutti i servizi senza rinunciare alla tranquillità. Caratteristiche principali: Appartamento spazioso con tre camere da letto e soggiorno Zona giorno open space con cucina e sala da pranzo, luminosa e accogliente. Tre camere da letto Nel mezzanino, una delle quali è una camera matrimoniale con bagno privato. Le altre due camere condividono un bagno moderno. Terrazza panoramica di 100 m² con vista mozzafiato Dotata di cucina estiva, barbecue e zona living all'aperto – ideale per momenti di relax e convivialità. Giardino e spazio esterno privato Cortile curato e terrazza privata che garantiscono massima riservatezza. Due posti auto privati Inclusi nel prezzo. Dotazioni tecniche e qualità costruttiva: Costruzione di alta qualità con materiali selezionati Pavimenti in vinile – resistenti e facili da mantenere Sanitari Grohe – design moderno e affidabile Elettrodomestici Samsung con garanzia di 3 anni Climatizzatori Daikin – raffreddamento ed efficienza ottimali Zanzariere su tutte le aperture Ripostiglio di 17 m² con corrente elettrica autonoma Situata in una delle zone più ambite di Crikvenica, vicina alla spiaggia e a tutti i servizi: ristoranti, negozi, bar e attività culturali. Perfetta per vivere tutto l’anno .
ID: 1191789