Casa - CRIKVENICA - 1.150.000 EUR
| Posizione | CRIKVENICA, Quarnaro |
| Prezzo € | 1.150.000 |
| Superficie | 320 m2 |
| Numero di camere | 8 |
| Superficie terrestre | 600 m2 |
| Bagni | 7 |
| Distanza dal mare | 1500 m |
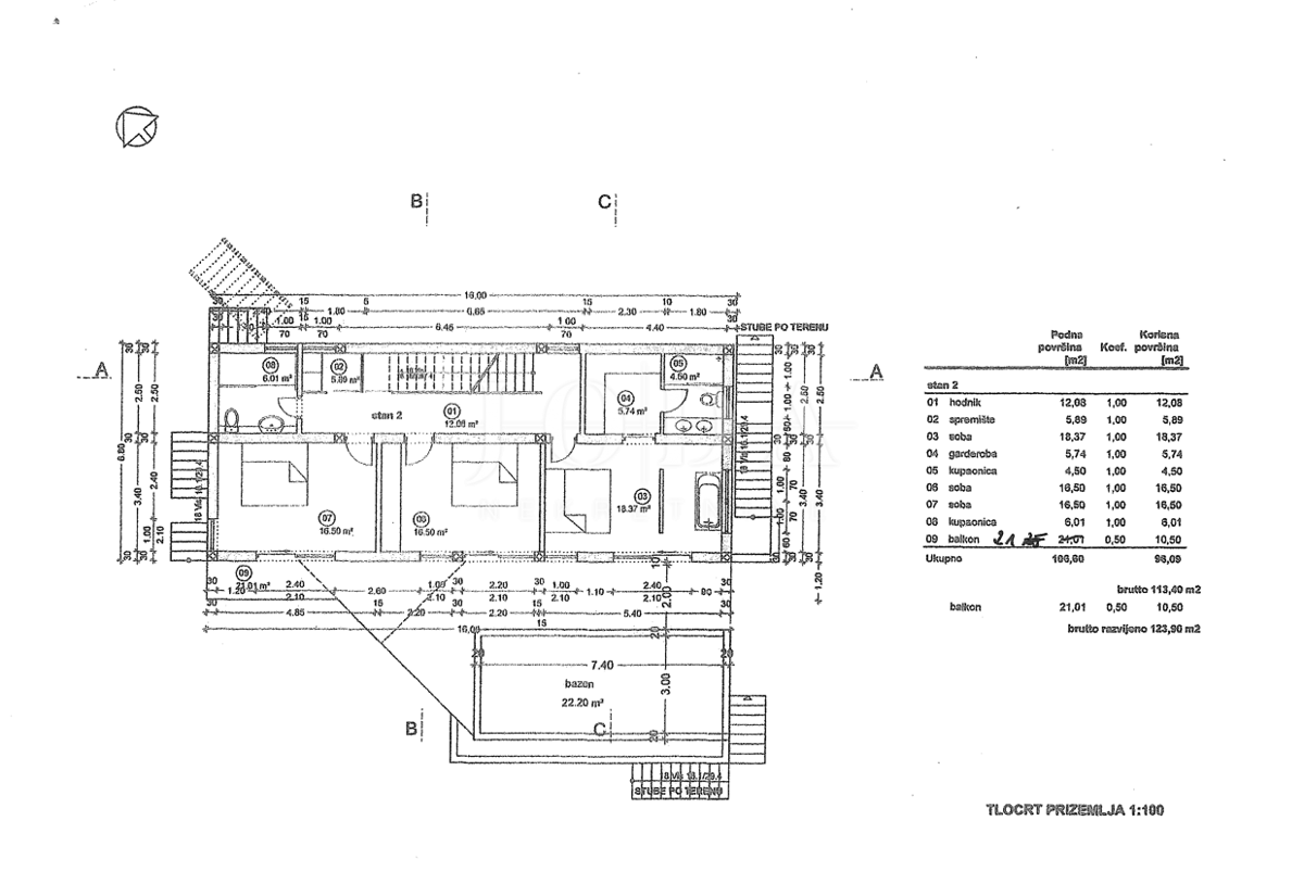
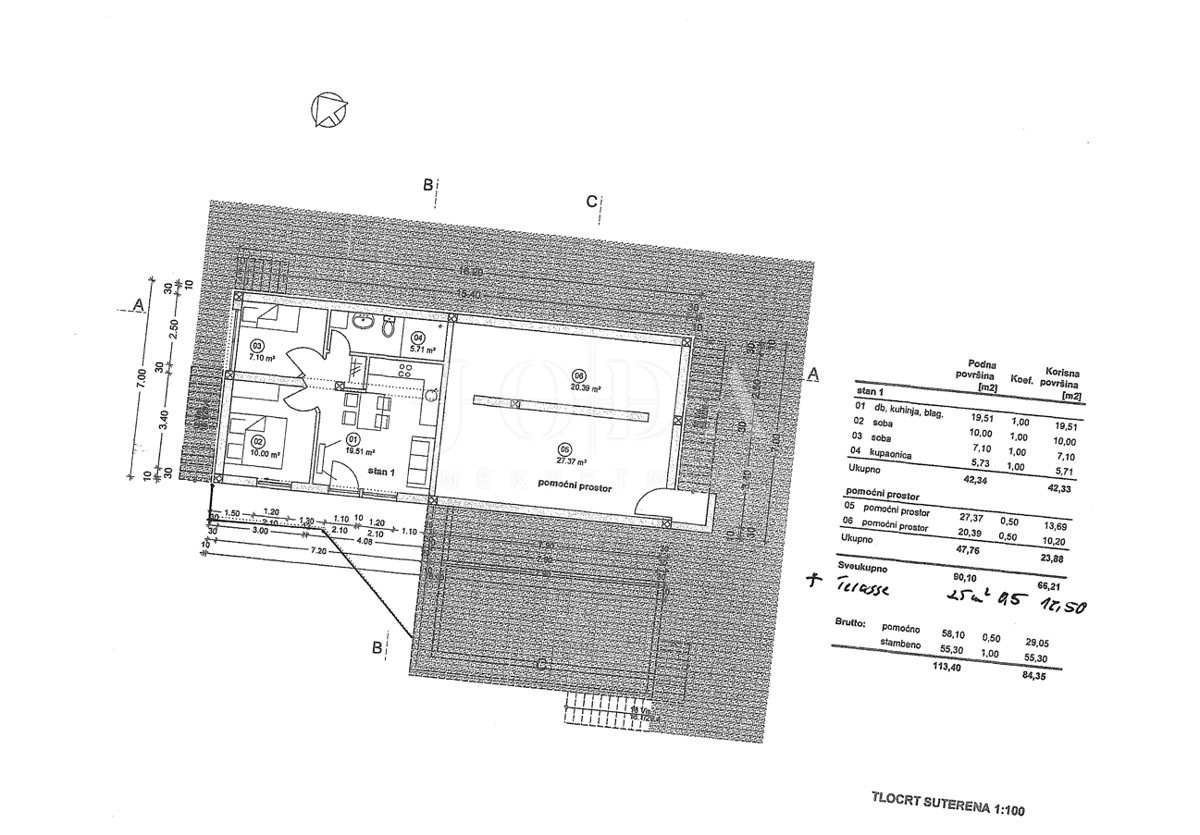
Nella parte alta di Crikvenica, circondata da case familiari, è in vendita una casa indipendente moderna con vista panoramica sul mare. I due piani superiori sono costituiti da un appartamento a due piani con tre camere da letto e due bagni in uno e un soggiorno e una cucina aperti all'ultimo piano. Una scala esterna conduce al piano inferiore, che contiene un appartamento appartato con una camera da letto e uno spazio per la socializzazione con un'area benessere. Il piano intermedio ospita una piscina di acqua salata e un'area per prendere il sole. L'intera casa è dotata di aria condizionata, pompa di calore per l'acqua calda, infissi in alluminio di alta qualità con tapparelle elettriche e zanzariere e riscaldamento a pavimento.
ID: 1188863