Appartamento - DRAGA BAŠĆANSKA - 285.000 EUR
| Posizione | DRAGA BAŠĆANSKA, KRK, Quarnaro |
| Prezzo € | 285.000 |
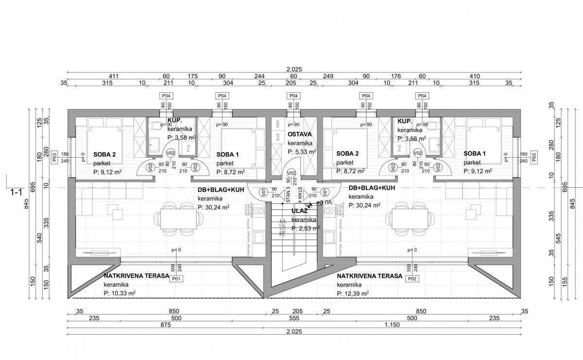
| Superficie | 64 m2 |
| Numero di camere | 3 |
| Bagni | 1 |
| Vicino ai trasporti | Si |
| Distanza dal mare | 2500 m |
L'appartamento 4, in un nuovo edificio vicino a Baška, è una proprietà funzionale e piacevole, ideale per vacanze, soggiorni o affitti turistici. Si trova al primo piano di un moderno edificio residenziale e ha una superficie totale di 64 m². La parte centrale dell'appartamento è uno spazio aperto e arioso di 30 m², che unisce cucina, sala da pranzo e soggiorno. Questo concetto di spazio consente una piacevole comunicazione quotidiana e molta luce naturale. Il soggiorno offre accesso a una terrazza di 12,39 m², che offre una vista sulla natura circostante e un'atmosfera tranquilla. L'appartamento dispone di due comode camere da letto e un bagno, il che lo rende adatto per un soggiorno in famiglia, per le vacanze o per affitti turistici. Nel cortile paesaggistico dell'edificio si trovano due posti auto di proprietà dell'appartamento, mentre un ripostiglio situato all'interno dell'edificio offre ulteriore comodità. L'immobile è caratterizzato da una disposizione funzionale, una posizione tranquilla e un piacevole ambiente naturale che garantisce qualità del soggiorno e privacy. La vendita viene effettuata chiavi in mano e la documentazione è in regola. Informazioni dettagliate sulle dotazioni previste, tra cui serramenti in PVC con tapparelle elettriche, porte d'ingresso antieffrazione, ceramiche di alta qualità da 60x60 cm, condizionatori in ogni stanza e laminato di alta qualità nelle camere da letto, sono disponibili su richiesta per i futuri acquirenti. L'immobile è soggetto a IVA, l'acquirente non paga l'imposta sulle vendite immobiliari e l'IVA è inclusa nel prezzo di acquisto. Gentili clienti, la commissione d'agenzia viene addebitata in conformità con i Termini e Condizioni Generali: www.myadriatic.hr/opci-uvjeti-poslovanja
ID: 1270304