Casa - DRAGA - 190.000 EUR
| Posizione | DRAGA, RIJEKA, Quarnaro |
| Prezzo € | 190.000 |
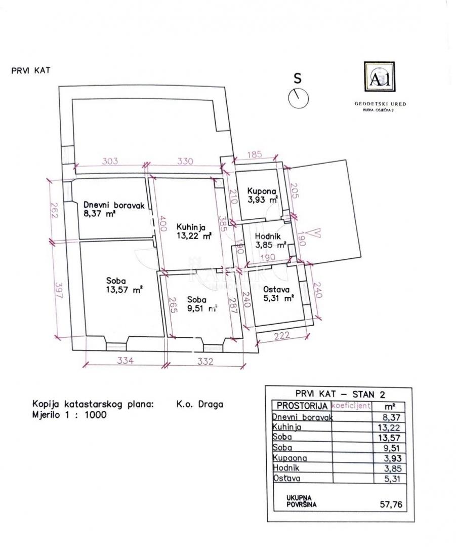
| Superficie | 57 m2 |
| Numero di camere | 3 |
| Superficie terrestre | 450 m2 |
| Bagni | 1 |
| Vicino ai trasporti | Si |
| Distanza dal mare | 0 m |
Fiume, Draga - Bellissima casa bifamiliare in pietra con ampia terrazza, dependance, giardino e garage (La casa non è attualmente divisa in appartamenti - è in corso una nuova perizia, che dovrebbe essere effettuata quest'anno - e pertanto può essere acquistata solo in contanti, mentre non è possibile un acquisto a credito.) L'agenzia immobiliare Kaiser Immobilien di Abbazia presenta la sua offerta per un terzo di una casa in pietra situata in riva al mare, immersa nel verde del pittoresco villaggio di Draga, un sobborgo della città di Fiume, con una piacevole terrazza parzialmente coperta, dependance, garage e un bellissimo giardino con casetta da giardino. La proprietà occupa 4 lotti catastali per una superficie totale di 450,65 m², di cui 78 m² di superficie edificabile e 161 m² di terrazza con zona salotto coperta, aiuole, un enorme kiwi, un barbecue esterno e una dependance in mattoni che può essere utilizzata come ripostiglio, laboratorio, luogo perfetto per socializzare con familiari e amici o può essere adattata esattamente alle idee e alle esigenze dei nuovi proprietari. C'è anche un vialetto di accesso con una quota di comproprietà di 15,65 m² e un bellissimo giardino con numerosi alberi da frutto e una casetta da giardino in legno (196 m² - in natura circa 230 m²). L'intero giardino è completamente recintato e rappresenta una splendida oasi suddivisa in diverse zone che offrono diverse possibilità di utilizzo. La casa è orientata a sud-ovest ed è divisa orizzontalmente, il che significa che l'appartamento in questione occupa l'intero primo piano, ovvero il piano rialzato con accesso diretto alla suddetta terrazza. L'ingresso della casa è protetto da una terrazza coperta. Entrando, veniamo accolti da un ingresso e, da un lato, da un ampio ripostiglio/dispensa ideale per conservare cibo, articoli per la casa o alimenti invernali, e dall'altro da un bellissimo bagno con doccia e WC. Due scale conducono alla zona giorno principale della casa, con cucina/sala da pranzo/soggiorno e due camere da letto. La cucina è dotata anche di una stufa a legna che riscalda l'intera casa e di aria condizionata che garantisce temperature piacevoli durante le calde giornate estive. Tuttavia, la casa è sempre molto accogliente, soprattutto grazie alla data di costruzione più recente e agli spessi muri in pietra. Sopra la cucina/sala da pranzo si trova una soffitta che può essere utilizzata come ulteriore spazio di stoccaggio. Il locale tecnico dispone di due stanze relativamente grandi e di un garage con serranda avvolgibile e telecomando, che può ospitare comodamente un'auto di grandi dimensioni. Nel 2013, la casa è stata ristrutturata: sono stati rifatti il tetto e la lamiera, sono stati rinnovati gli infissi, ecc. La casa viene venduta arredata ed è pronta per essere abitata da subito. Tutti i servizi principali si trovano nelle vicinanze della casa, la zona industriale di Kukuljanovo, con negozi di ogni genere, è a soli 5 minuti di auto e il palazzetto dello sport o la piscina, attualmente in costruzione, saranno altrettanto vicini. La fermata dell'autobus pubblico è a pochi metri dalla casa. Una casa costiera eccezionalmente bella che rappresenta una combinazione ideale di tradizione, comfort e praticità, integrata nello splendido paesaggio circostante. Zona industriale di Kukuljanovo - 4 km / 6 minuti Centro di Fiume - 8 km / 10 minuti Aeroporto di Fiume - 20 km / 20 minuti Spiaggia più vicina - 8 km / 10 minuti La commissione dell'agenzia per l'acquirente è del 3% + IVA. La commissione copre tutti i servizi relativi all'acquisto e viene corrisposta solo in caso di acquisto di un immobile, al momento della conclusione del primo atto giuridico. Per maggiori informazioni, contattare: Vanja Vitezica Tel: +385 915 231 376 E-mail: vanja@kaiser-immobilien.hr e Jirka Nerad +385 911 632 884 E-mail: jirka@kaiser-immobilien.hr Codice immobile: 101-291 Grazie per il vostro interesse!
ID: 1194912