Terreno - GALIŽANA - 129.000 EUR
| Posizione | GALIŽANA, VODNJAN, Istria |
| Prezzo € | 129.000 |
| Superficie | 563 m2 |
| Vicino ai trasporti | Si |
| Distanza dal mare | 5000 m |
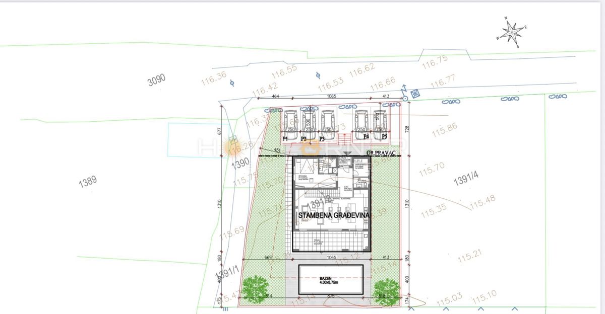
ID 4250 Terreni edificabili con permesso di costruzione e progetto per casa familiare – Galižana, Comune di Vodnjan, ONERI COMUNALI PAGATI! In vendita due attraenti lotti edificabili, situati uno accanto all'altro, in una zona tranquilla di Galižana, Comune di Vodnjan. La posizione è ideale per la costruzione di moderne case familiari o per un investimento in ville turistiche, grazie alla vicinanza a Pola, al mare e a tutti i servizi necessari. Entrambi i lotti dispongono di permesso di costruzione e di un progetto per una moderna casa familiare con piscina, che riduce significativamente i tempi di costruzione e le pratiche amministrative per l'investitore. Dettagli dei lotti: Lotto 1 Superficie: 564 m² Dimensioni: 18 m x 28 m x 22 m x 28 m Lotto 2 Superficie: 563 m² Dimensioni: 19,4 m x 28 m x 29 m x 20 m Ogni lotto dispone di un progetto individuale per una costruzione residenziale con piscina di 4,00 x 8,75 m. Il progetto prevede un'architettura moderna con ampio soggiorno, cucina, diverse camere da letto, bagni e terrazze coperte. Prezzo: €250/m² se i lotti vengono venduti separatamente €220/m² se acquistati insieme L'acquisto di entrambi i lotti rappresenta un investimento più conveniente, con il potenziale per costruire due ville identiche per uso privato o per affitto turistico. Posizione: Distanza dal mare: circa 5 km Distanza dal centro di Pola: circa 8 km Distanza dall'aeroporto di Pola: circa 10 km Vicino a negozi e servizi di base: circa 2 km Un'opportunità eccellente per realizzare la propria casa o investire in un'area ad alta richiesta! Per ulteriori informazioni chiamare +385993242295, Olga Soshnikova
ID: 1196169