Terreno - GARICA - 130.000 EUR
| Posizione | GARICA, KRK, Quarnaro |
| Prezzo € | 130.000 |
| Superficie | 1050 m2 |
| Distanza dal mare | 5000 m |
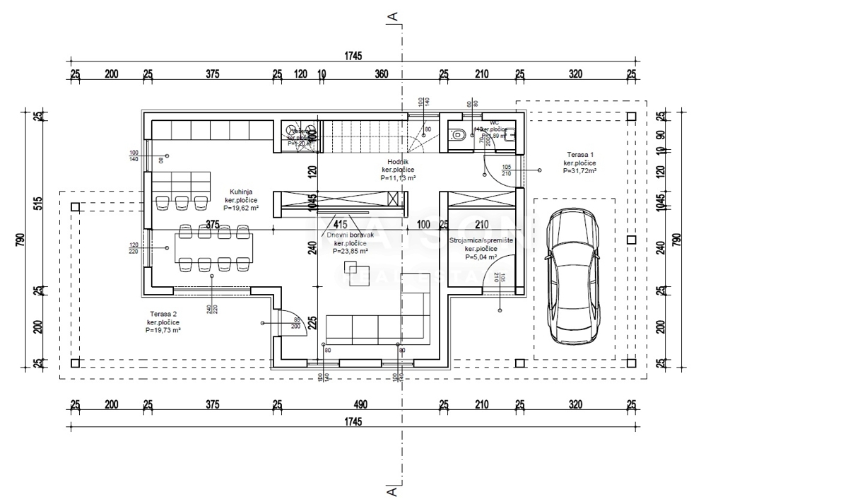
È in vendita un terreno edificabile di 1.050 m² con permesso di costruire valido e oneri comunali pagati, situato in una posizione estremamente tranquilla nella parte centrale dell’isola di Krk, nei pressi di Vrbnik. Si tratta di una posizione non adatta a tutti, ma ideale per chi cerca consapevolmente pace, privacy e distanza dalla folla turistica, privilegiando lo stile di vita rispetto alla vicinanza al mare. Il terreno è ben curato, di forma regolare, con accesso garantito e tutte le infrastrutture immediatamente adiacenti alla particella. La posizione centrale consente un facile collegamento con tutte le zone dell’isola di Krk, mentre l’ambiente circostante assicura tranquillità e comfort durante tutto l’anno. La proprietà è regolare e la documentazione completa. Grazie al permesso di costruire già rilasciato, è possibile iniziare la costruzione immediatamente, senza ulteriori procedure amministrative. Il prezzo è molto competitivo considerando la posizione, la documentazione risolta e la prontezza alla costruzione. Secondo il permesso di costruire in vigore, è prevista la realizzazione di una casa indipendente con piscina, sviluppata su piano terra e primo piano. Il piano terra comprende un ingresso, un ampio soggiorno collegato alla cucina e alla zona pranzo, un bagno di servizio, una lavanderia e un locale tecnico/ripostiglio, con accesso a due terrazze che collegano gli spazi interni ed esterni. Il primo piano prevede tre camere da letto, tre bagni, un corridoio con scala e due terrazze che garantiscono ulteriore privacy e comfort. Il progetto è pensato come abitazione di qualità per vivere tutto l’anno ed è anche un’ottima opportunità di investimento.
ID: 1254932