Appartamento - GLAVANI - 880.000 EUR
| Posizione | GLAVANI, KOSTRENA, Quarnaro |
| Prezzo € | 880.000 |
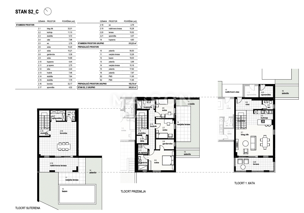
| Superficie | 212 m2 |
| Numero di camere | 4 |
| Superficie terrestre | 153 m2 |
| Bagni | 2 |
| Vicino ai trasporti | Si |
| Distanza dal mare | 1000 m |
Kostrena Glavani – Appartamento S2-C, 212,23 m² Nel tranquillo quartiere verdeggiante di Glavani, a Kostrena, si trova l’appartamento S2-C – parte di un progetto esclusivo che unisce architettura contemporanea, alta qualità costruttiva e comfort della vita familiare. I suoi spaziosi 212,23 m² interni offrono ampiezza ed eleganza, mentre le grandi superfici vetrate aprono un’imponente vista sul Quarnero e sulle isole. L’appartamento è concepito come un trilocale con soggiorno, con una distribuzione funzionale che comprende un ampio soggiorno, cucina e sala da pranzo, un bagno e un ulteriore WC. Il design è studiato per garantire abbondante luce naturale e una transizione fluida tra spazi interni ed esterni. Alla proprietà appartengono anche 153,70 m² di giardino curato, una terrazza di 15,52 m² e una piscina privata di 18 m². Questa area esterna esalta ulteriormente la sensazione di oasi privata e crea l’atmosfera di una vera casa indipendente. La qualità costruttiva si riflette in ogni dettaglio: riscaldamento a pavimento con pompa di calore, climatizzazione, parquet a tre strati, ceramiche di alta gamma, serramenti in alluminio con ampie vetrate, nonché porte blindate e tagliafuoco. Ogni elemento è stato scelto con l’obiettivo di garantire valore duraturo, massimo comfort e sicurezza. Un investitore esperto, con numerosi progetti realizzati con successo, conferma ulteriormente che si tratta di un immobile che unisce sicurezza dell’investimento e qualità della vita ai massimi livelli. Per presentazioni private o ulteriori informazioni, non esitate a contattarci. Maison - perché una casa non è solo un luogo, ma uno stile di vita.
ID: 1217538