Appartamento - GLAVANI - 880.000 EUR
| Posizione | GLAVANI, KOSTRENA, Quarnaro |
| Prezzo € | 880.000 |
| Superficie | 164 m2 |
| Numero di camere | 4 |
| Superficie terrestre | 176 m2 |
| Bagni | 3 |
| Vicino ai trasporti | Si |
| Distanza dal mare | 0 m |
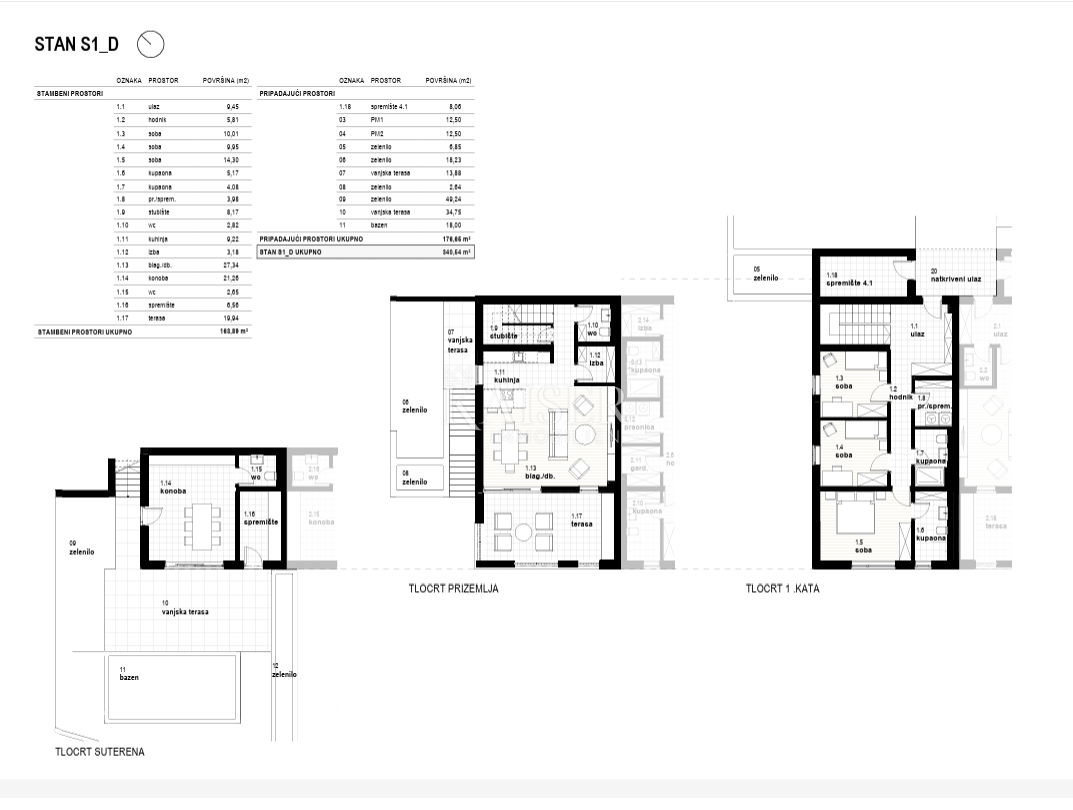
Kaiser Immobilien offre un'esclusiva proprietà moderna a Kostrena: un appartamento S2-D di 164,90 m² con piscina privata e una splendida vista sul Golfo del Quarnero. Nel tranquillo villaggio di Glavani a Kostrena, circondato dal verde e dall'atmosfera mediterranea, si trova questo lussuoso appartamento che unisce l'espressione architettonica contemporanea, la costruzione di alta qualità e il massimo comfort. L'ampio interno di 164,90 m² è concepito come un trilocale con soggiorno, bagni moderni, un WC aggiuntivo, una cabina armadio e pratici locali di servizio. La zona giorno open space con cucina e sala da pranzo emana luce ed eleganza, e le ampie vetrate offrono una vista spettacolare sul mare e sulle isole del Quarnero. L'appartamento dispone di un giardino adiacente di 182,60 m², accuratamente curato e impreziosito da una piscina privata di 17,64 m², che offre una sensazione di completa privacy e tranquillità. Particolare attenzione è stata posta alla selezione dei materiali e alla tecnologia costruttiva: sono stati utilizzati solo materiali di alta qualità e l'edificio è dotato di riscaldamento a pavimento tramite pompa di calore, aria condizionata, parquet a tre strati, ceramiche di altissima qualità e serramenti in alluminio con ampie superfici vetrate che forniscono ulteriore calore e luce agli spazi. L'appartamento dispone di due posti auto e di un ripostiglio, e l'intero progetto si distingue per il design e l'architettura ben studiati che garantiscono un valore a lungo termine e un elevato livello di comfort abitativo. La posizione a Kostrena coniuga perfettamente tranquillità e privacy con la vicinanza di tutti i servizi necessari per la vita moderna. Nelle immediate vicinanze si trovano scuole, asili, negozi, passeggiate, piste ciclabili e spiagge ben curate, mentre il centro di Fiume è a soli dieci minuti di auto. Kostrena è nota per la sua splendida costa, il lungo lungomare e il paesaggio mediterraneo che garantisce un'elevata qualità della vita durante tutto l'anno. Oltre agli ottimi collegamenti con Fiume e l'intero Quarnero, Kostrena si trova a una distanza ideale dalle principali città europee. Lubiana dista circa 130 chilometri, Trieste 90 chilometri, Zagabria 160 chilometri, Venezia 220 chilometri, mentre Monaco e Vienna distano circa 500 chilometri. Grazie all'autostrada e alla vicinanza dell'aeroporto di Fiume, viaggiare è facile e veloce, il che aumenta ulteriormente l'attrattiva di questa posizione. Questa proprietà rappresenta la perfetta combinazione di lusso, comfort ed eleganza moderna. È ideale per la vita familiare, ma anche come investimento per il turismo d'élite. Kaiser Immobilien - il vostro partner affidabile nella ricerca di una casa con vista mare. La commissione dell'agenzia per l'acquirente è del 3% + IVA. La commissione copre tutti i servizi relativi all'acquisto e viene corrisposta solo in caso di acquisto di un immobile, al momento della conclusione dell'atto giuridico. Per ulteriori informazioni rivolgersi a: Marijana Cuculić Telefono: +385981869950 E-mail: marijana.cuculic@kaiser-immobilien.hr Nelica Arsenijević Telefono: +385919254809 E-mail: nelica@kaiser-immobilien.hr
ID: 1233559