Terreno - GOLAŠ - 315.000 EUR
| Posizione | GOLAŠ, BALE, Istria |
| Prezzo € | 315.000 |
| Superficie | 834 m2 |
| Distanza dal mare | 0 m |
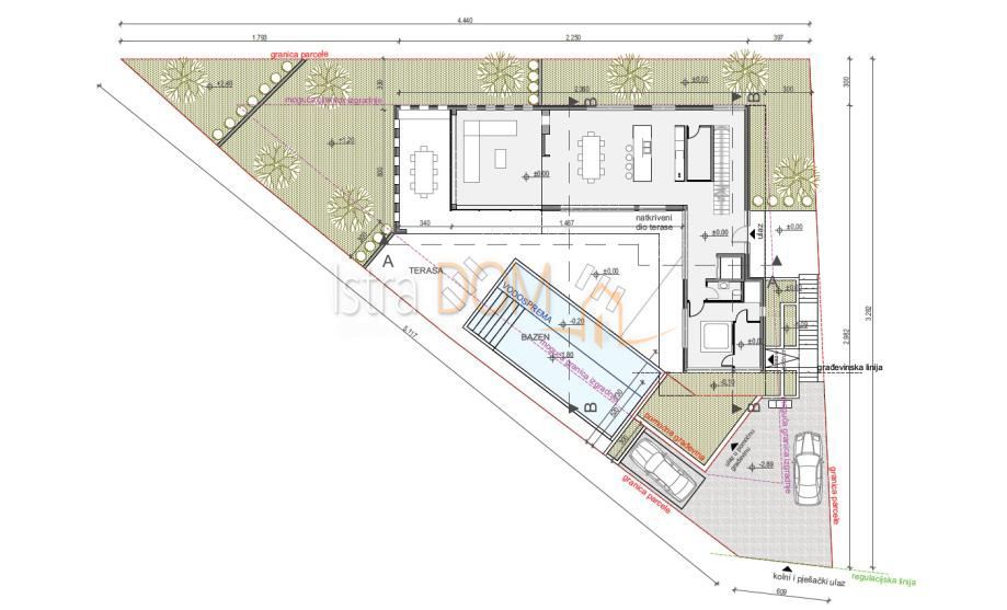
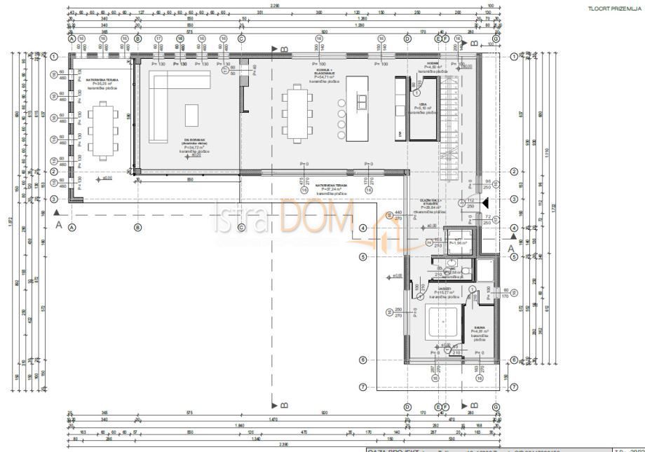
Offriamo un bellissimo terreno edificabile situato in un insediamento di nuova formazione ai margini della zona edificabile, che offre una vista aperta sul mare. Per la struttura progettata e mostrata nelle immagini è stato ottenuto un permesso di costruzione valido sul terreno. Il terreno è di proprietà esclusiva ed è presente una strada di accesso, il che facilita ulteriormente i lavori futuri. Questa proprietà rappresenta un'eccellente opportunità per costruire la tua casa o un progetto di investimento. Se siete interessati, non esitate a contattarci per maggiori informazioni o per organizzare una visita al terreno. Contatto: +385/99-444-5435 e-mail: istradom.sasan@gmail.com
ID: 1264166