Terreno - GRAČIŠĆE - 74.000 EUR
| Posizione | GRAČIŠĆE, Istria |
| Prezzo € | 74.000 |
| Superficie | 1375 m2 |
| Distanza dal mare | 0 m |
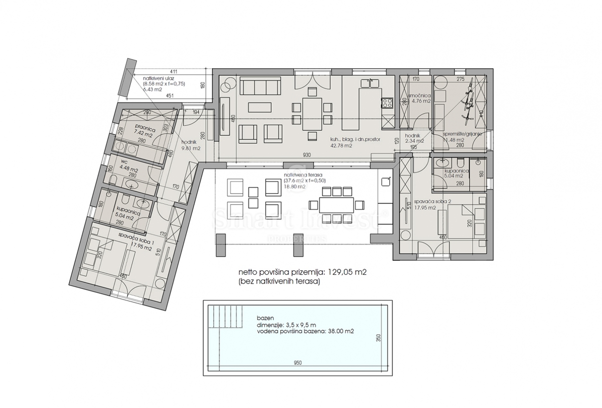
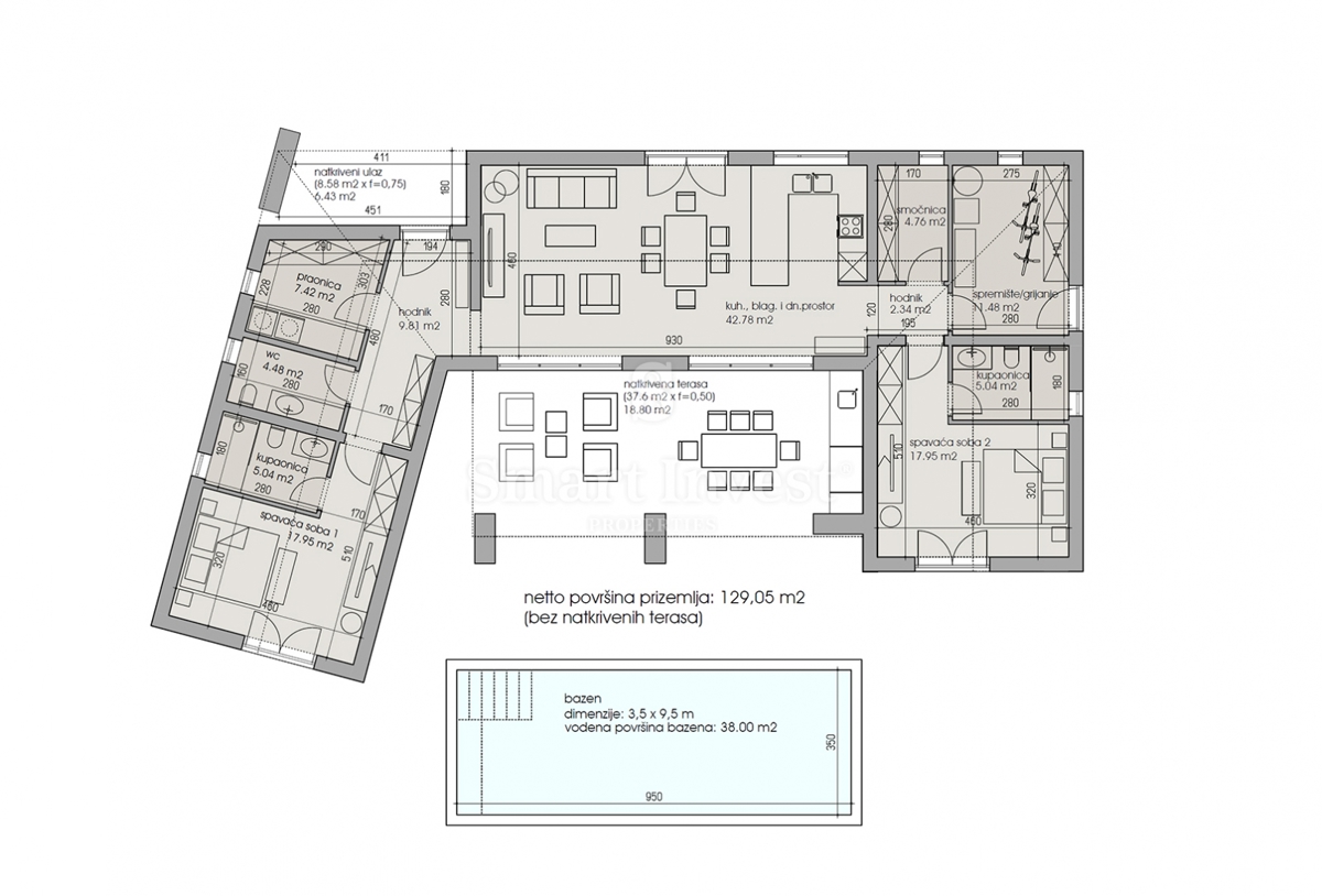
IN VENDITA, TERRENO EDIFICABILE CON PROGETTO DI MASSIMA, PAZIN, 1.375 m² In vendita terreno edificabile con progetto di massima per una moderna casa in stile mediterraneo. Il progetto unisce architettura contemporanea ed elementi tradizionali, utilizzando materiali naturali come pietra, legno e cemento. Le ampie superfici vetrate e le linee pulite garantiscono un pieno contatto visivo tra interni, paesaggio e piscina prevista. Sono state presentate le richieste per le condizioni speciali di allacciamento. All’acquirente viene offerto anche il servizio di ottenimento del permesso di costruzione e di supervisione dei lavori. In tal caso, il pagamento della casa finita avverrebbe per fasi di costruzione. PROGETTO DI MASSIMA – DESIGN La casa è progettata con spazi aperti, molta luce naturale e terrazze che si integrano con l’ambiente circostante, ideale per una vita tranquilla e confortevole. DISTRIBUZIONE (SECONDO IL PROGETTO) Piano terra: Soggiorno open space con cucina e sala da pranzo Locale tecnico con WC Camera da letto con bagno privato Grandi vetrate scorrevoli verso la terrazza coperta e la piscina Piano superiore: Due camere da letto, ciascuna con bagno privato Materiali e finiture previste: Parquet nelle zone abitative Piastrelle ceramiche nei bagni DOTAZIONI E CARATTERISTICHE PREVISTE Riscaldamento e raffrescamento: pompa di calore, riscaldamento a pavimento nei bagni, fan-coil nelle altre stanze Camino: camino aperto nel soggiorno Piscina: 38 m², bordo in pietra, rivestimento in mosaico, solarium in pietra Distanza dal mare: 28 km Occasione! Prezzo: 75.000 EUR. Per ulteriori informazioni chiamare +385 99 320 0011.
ID: 1259430