Casa - HLAPA - 250.000 EUR
| Posizione | HLAPA, KRK, Quarnaro |
| Prezzo € | 250.000 |
| Superficie | 93 m2 |
| Numero di camere | 4 |
| Superficie terrestre | 234 m2 |
| Bagni | 2 |
| Vicino ai trasporti | Si |
| Distanza dal mare | 0 m |
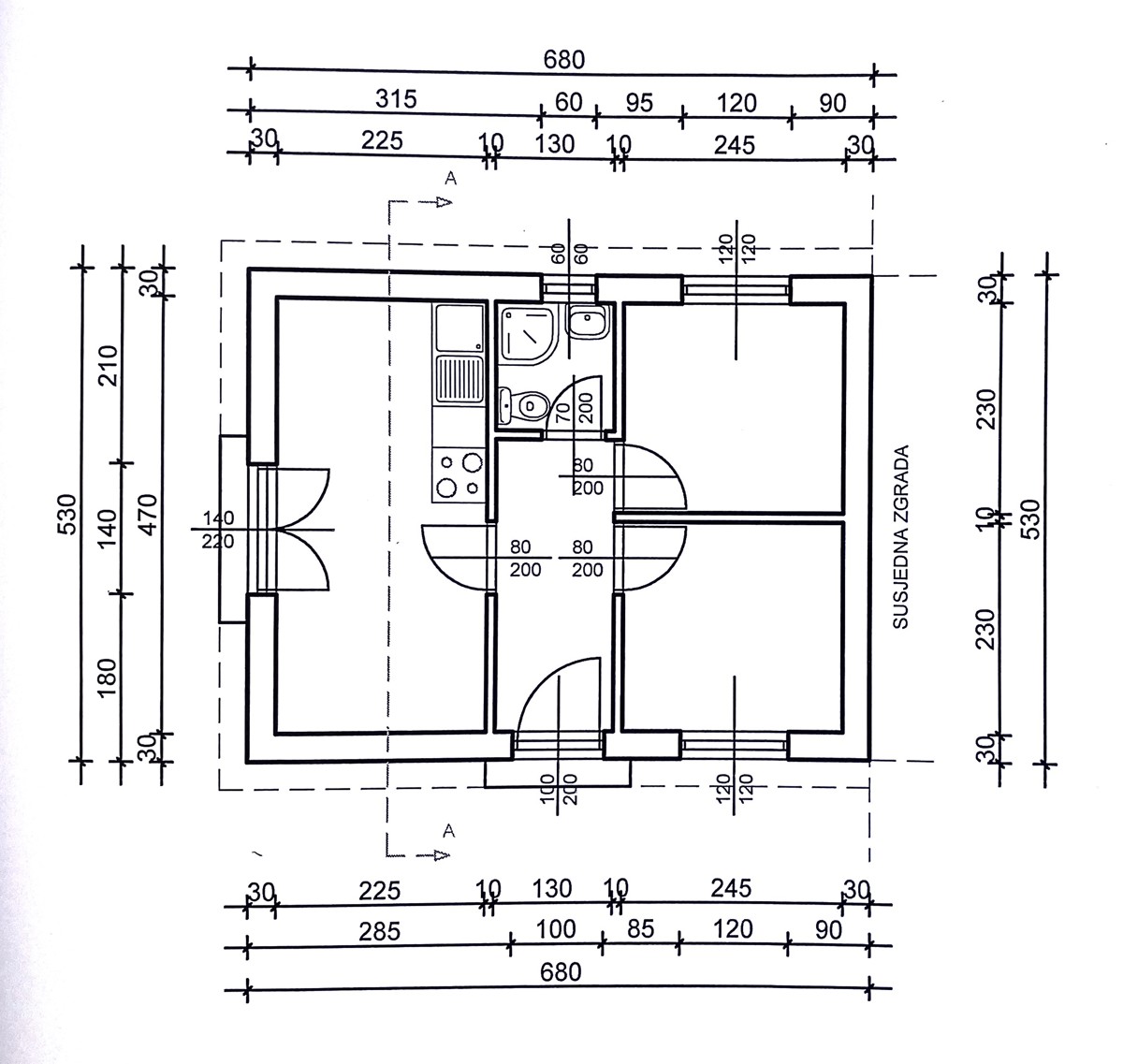
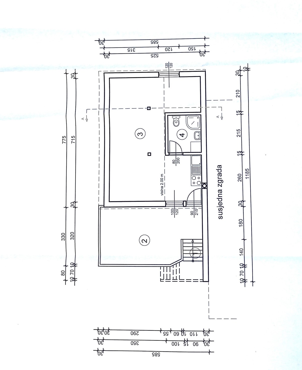
Isola di Krk, nei dintorni di Dobrinj, casa bifamiliare con due appartamenti e vista parziale sul mare. La casa è composta da un appartamento al piano terra con due camere da letto, cucina con sala da pranzo, soggiorno, bagno e terrazza di 7 m2. Nel sottotetto alto si trova un appartamento più piccolo di 33 m2, che consiste in una terrazza scoperta con vista parziale sul mare, cucina, ampia stanza, ripostiglio e bagno. Sul terreno di 164 m2 c'è spazio sufficiente per il relax e il parcheggio di più veicoli. Alla casa appartiene una cantina più piccola nel seminterrato. Vi invitiamo a entrare in questa splendida casa e a scoprire personalmente tutto ciò che offre. Per maggiori informazioni o per organizzare una visita, non esitate a contattarci.
ID: 1171462