Terreno - JURŠIĆI - 129.000 EUR
| Posizione | JURŠIĆI, SVETVINČENAT, Istria |
| Prezzo € | 129.000 |
| Superficie | 980 m2 |
| Distanza dal mare | 0 m |
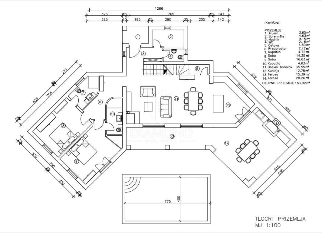
Istria, zona di Pola In un tranquillo villaggio istriano, circondato da case unifamiliari e tanto verde, è in vendita un terreno edificabile ideale per una casa da vivere tutto l’anno o per una casa vacanze. La posizione offre pace e privacy, rimanendo comunque ben collegata a Pola, Dignano, Fasana e ad altri centri più grandi, nonché al mare. Nelle vicinanze si trovano tutti i servizi di base necessari per la vita quotidiana, mentre le città maggiori sono raggiungibili in pochi minuti di auto. Si tratta di un terreno edificabile adatto alla costruzione di una casa unifamiliare o di una casa per le vacanze. Ciò che rende questa proposta particolarmente interessante è il fatto che il terreno viene venduto con un progetto di casa già realizzato e con regolare permesso di costruire, il che riduce in modo significativo tempi e iter burocratici per il nuovo proprietario. Il progetto prevede una casa moderna e funzionale, in armonia con l’ambiente istriano, con particolare attenzione agli ampi spazi giorno e a un buon collegamento tra interno ed esterno. L’accesso al lotto è garantito e gli allacci per acqua ed elettricità si trovano nelle immediate vicinanze o direttamente al confine del terreno. Se state cercando un terreno sul quale poter iniziare a costruire in tempi relativamente brevi, senza lunghe attese per la documentazione progettuale e le autorizzazioni, questa è un’ottima opportunità. Per maggiori informazioni sul progetto della casa, per visionare la documentazione o per fissare una visita al terreno, non esitate a contattarci.
ID: 1240119