Appartamento - JUŠIĆI - 278.000 EUR
| Posizione | JUŠIĆI, MATULJI, Quarnaro |
| Prezzo € | 278.000 |
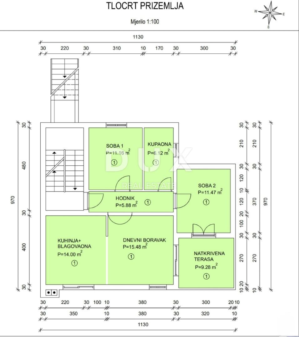
| Superficie | 84 m2 |
| Numero di camere | 3 |
| Bagni | 1 |
| Vicino ai trasporti | Si |
| Distanza dal mare | 0 m |
MATULJI, JUŠIĆI, JURDANI - appartamento al piano terra di 84,06 m² in un nuovo edificio DB + 2S con giardino Non lontano dal centro di Matulji, a Jušići, vendiamo un appartamento al piano terra composto da: - corridoio, - due (2) camere da letto, - sala da pranzo + soggiorno - cucina - bagno - terrazza coperta, tutto al piano terra, e quanto segue: - un ripostiglio (segno n. 1) nel seminterrato, - un posto auto (segno n. 1), - un altro posto auto (segno n. 2) e - area verde (segno n. 1) all'esterno dell'edificio, il tutto contrassegnato in verde. La superficie totale della parte residenziale è di 73,39 m², mentre gli accessori sono di 99,33 m². La superficie totale della parte separata è di 172,72 m². L'edificio è dotato di ottimi infissi in PVC e riscaldamento elettrico a pavimento. L'IVA è inclusa nel prezzo, quindi il futuro acquirente non pagherà alcuna imposta al momento dell'acquisto dell'immobile. Gentili clienti, la commissione d'agenzia viene addebitata in conformità con le Condizioni Generali di Contratto: www.dux-nekretnine.hr/opci-uvjeti-poslovanja
ID: 1212377