Terreno - JUŠIĆI - 1.100.000 EUR
| Posizione | JUŠIĆI, MATULJI, Quarnaro |
| Prezzo € | 1.100.000 |
| Superficie | 1188 m2 |
| Vicino ai trasporti | Si |
| Distanza dal mare | 3000 m |
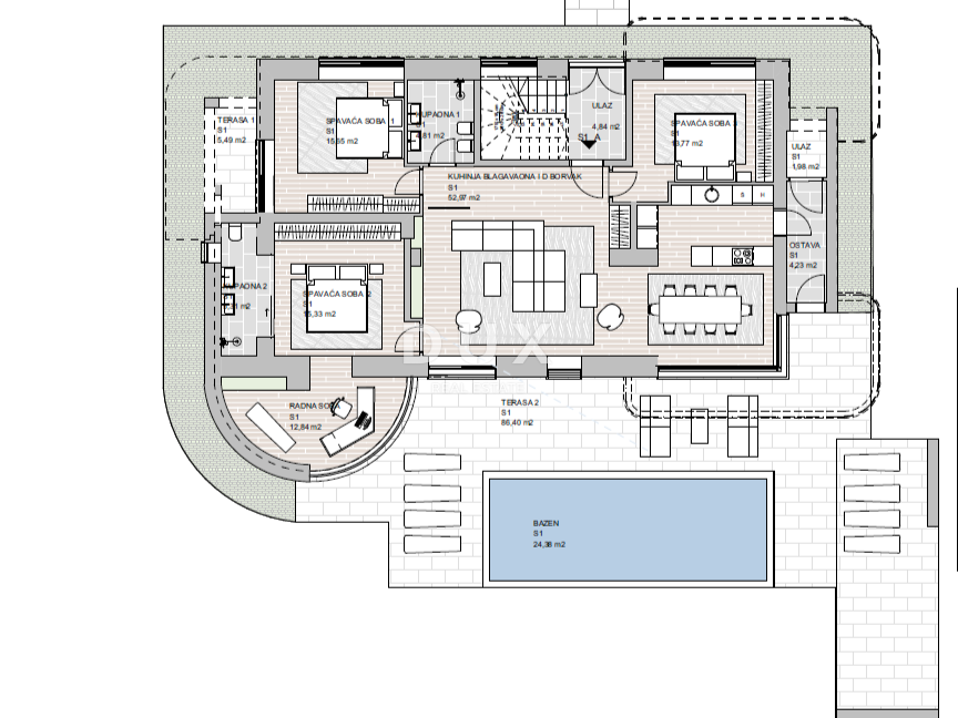
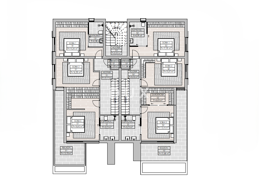
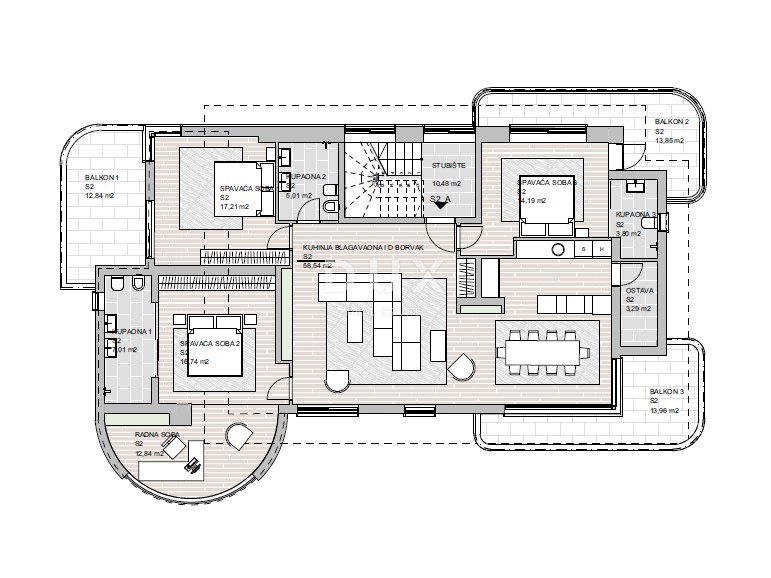
MATULJI, JUŠIĆI – terreno edificabile per 13 appartamenti esclusivi, posizione privilegiata! A DUX, offriamo un'opportunità unica: un terreno edificabile che permette la costruzione di tre edifici residenziali (A, B e C) con un totale di 13 appartamenti esclusivi, rendendo questa proprietà un'eccezionale opportunità per gli investitori. L'edificio A ha una superficie di 602,96 m² e si compone di tre appartamenti: l'appartamento S1 al piano terra con una superficie totale di 243,16 m², l'appartamento S2 al primo piano con una superficie totale di 179,28 m² e l'appartamento S3 al secondo piano con una superficie totale di 180,52 m². L'edificio B ha una superficie di 768,6 m² e si compone di cinque appartamenti e una terrazza sul tetto. Al piano interrato si trovano gli appartamenti S1 e S2, con superfici totali rispettivamente di 54,85 m² e 54,82 m². Al piano terra dell'edificio si trovano due appartamenti con una superficie totale di 123,54 m² e 123,74 m². Analogamente, al primo piano si trovano due appartamenti con una superficie totale di 84,49 m² e 90,81 m². All'ultimo piano dell'edificio, più precisamente al secondo piano, si trova l'appartamento S3 con una superficie totale di 178,63 m². L'edificio B dispone inoltre di una piscina sul tetto e di una terrazza con una superficie totale di 57,72 m². L'edificio C ha una superficie di 820,69 m² ed è composto da cinque appartamenti e una terrazza sul tetto. Al piano interrato si trovano gli appartamenti S1 e S2, con una superficie totale di 54,85 m² e 54,82 m². Al piano terra si trovano due appartamenti con una superficie totale di 123,97 m² e 121,93 m². Allo stesso modo, al primo piano si trovano due appartamenti con una superficie totale di 84,46 m² e 90,81 m². All'ultimo piano dell'edificio, più precisamente al secondo piano, si trova l'appartamento S3 con una superficie totale di 189,11 m². L'edificio C dispone inoltre di una piscina sul tetto e di una terrazza con una superficie totale di 57,72 m². In sostanza, il terreno viene venduto con progetti preliminari già predisposti, mentre il futuro investitore dovrà elaborare i progetti esecutivi e di dettaglio e presentare la domanda di permesso di costruire. Il terreno si trova in una posizione fantastica e vivace, vicino a Matulji e Opatija, in un ambiente tranquillo e ben curato, circondato dal verde e da recenti costruzioni di qualità, il che gli conferisce ulteriore valore e sicurezza di investimento a lungo termine. Tutte le infrastrutture necessarie si trovano nelle immediate vicinanze del terreno e la posizione consente un accesso rapido e agevole a Opatija, Rijeka e alle principali arterie stradali. Il progetto prevede un'architettura contemporanea, privacy, spazi esterni e piscine, il che rende questo investimento estremamente interessante per il mercato degli affitti residenziali o turistici. Per organizzare una visita all'immobile, contattate un agente di fiducia: è possibile ricevere consulenza anche in tedesco. Gentili clienti, la commissione d'agenzia viene addebitata secondo le Condizioni Generali di Contratto. www.dux-nekretnine.hr/opci-uvjeti-poslovanja
ID: 1274763