Casa - KALDANIJA - 310.000 EUR
| Posizione | KALDANIJA, BUJE, Istria |
| Prezzo € | 310.000 |
| Superficie | 109 m2 |
| Numero di camere | 5 |
| Distanza dal mare | 3000 m |
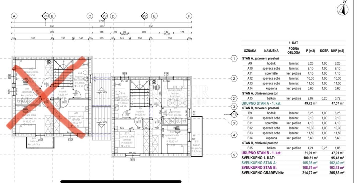
Kaiser Immobilien presenta un appartamento in una casa bifamiliare in un piccolo villaggio vicino a Salvore, vicino a Portorose e alla Slovenia. Umago dista 6 km, Salvore 7 km, Portorose 13 km e il mare 3 km. L'appartamento B rappresenta la metà di una casa bifamiliare in costruzione di 109 m² (appartamento di 105 m² + balcone di 4 m²). La superficie utile netta dell'appartamento è di 103 m². L'appartamento dispone di una cucina di 12 m² al piano terra, un soggiorno di 21 m², un bagno di 5 m² e un ripostiglio di 5 m². Al primo piano si trovano 3 camere da letto di 9 m², 10 m² e 12 m², un bagno di 6 m² e un ripostiglio di 4 m². Al primo piano si trova un balcone di 4 m². La disposizione estremamente pratica e funzionale soddisferà tutte le esigenze della vita quotidiana o di un soggiorno turistico. La costruzione dell'immobile sta per iniziare, viene venduta chiavi in mano e il completamento dei lavori è previsto per la fine del 2026. L'acquirente dell'immobile ha la possibilità di negoziare con il venditore tutti i dettagli riguardanti la disposizione della casa bifamiliare o dell'appartamento, le dinamiche di pagamento, un'opportunità che offre grande flessibilità e possibilità di personalizzazione in base ai desideri dell'acquirente. L'acquirente ha anche a disposizione una parte del giardino dell'appartamento. Un'ottima opportunità per acquistare un immobile a un prezzo equo, che può essere utilizzato per l'abitazione principale o per l'affitto turistico. La commissione di intermediazione per l'acquirente è del 3% + IVA. La commissione copre tutti i servizi relativi all'acquisto e viene corrisposta solo in caso di acquisto dell'immobile, al momento della conclusione del primo atto giuridico. Non esitate a contattarci per ulteriori informazioni e per organizzare una visita dell'immobile: Damir Mlacović e-mail: damir@kaiser-immobilien.hr tel: +385-98-339-933
ID: 1253980