Appartamento - KANFANAR - 339.000 EUR
| Posizione | KANFANAR, Istria |
| Prezzo € | 339.000 |
| Superficie | 123 m2 |
| Numero di camere | 3 |
| Bagni | 2 |
| Vicino alla spiaggia | Si |
| Distanza dal mare | 0 m |
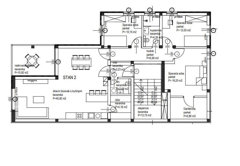
Vendiamo appartamenti in un edificio la cui costruzione è iniziata nel 9° mese del 2023. Il progetto è composto da due edifici collegati con un totale di 8 appartamenti, 3 appartamenti in uno e 5 nell'altro edificio. Gli edifici si trovano in una zona tranquilla di Canfanaro, circondati da ville di lusso, lontano dalle strade trafficate. Il trilocale S2 si trova al 1° piano di una palazzina di complessivamente 3 appartamenti, un appartamento per piano, ha una superficie abitabile di 123,30 mq ed è composto dai seguenti locali: soggiorno + cucina + sala da pranzo - 45,82 m2 ingresso - 3,23 m2 corridoio - 6,96 m2 WC - 2,68 mq bagno - 4,35 m2 camera da letto 1 - 10,15 m2 camera da letto 2 - 12,03 m2 camera da letto 3 - 16,20 m2 stanza/dispensa - 4,16 m2 spogliatoio - 6,80 m2 terrazza coperta - 10,92 m2 L'appartamento dispone di 1 posto auto. Ceramiche di qualità sono fornite in ogni stanza tranne le camere da letto e la zona ingresso, dove verranno installati pavimenti in vinile di alta qualità. La costruzione è iniziata all’inizio dell’autunno 2023 e il completamento è previsto per la fine del 2024. Accettiamo prenotazioni! +385 91 611 5706 azra@almadominvest.com +385 98 420 885
ID: 1224407