Terreno - KANFANAR - 140.000 EUR
| Posizione | KANFANAR, Istria |
| Prezzo € | 140.000 |
| Superficie | 943 m2 |
| Numero di camere | 1 |
| Superficie terrestre | 943 m2 |
| Distanza dal mare | 10000 m |
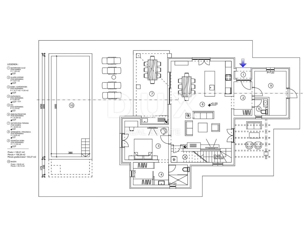
ISTRIA, KANFANAR – Terreno edificabile con permesso definitivo per una lussuosa casa unifamiliare con piscina In un tranquillo villaggio istriano circondato dal verde, offriamo un terreno edificabile con licenza edilizia valida per la costruzione di una lussuosa casa familiare che coniuga l'autentica atmosfera mediterranea con i comfort moderni. Secondo il progetto, la futura struttura avrà una superficie abitabile di 156,28 m² e una piscina aggiuntiva di 38,00 m², ideale per la vita familiare o come investimento in affitti turistici. La planimetria della casa è la seguente: piano terra con ampio soggiorno (51,69 m²), cucina moderna con zona pranzo, ingresso, WC, ripostiglio/lavanderia, locale tecnico e terrazza coperta. Primo piano con tre comode camere da letto, due bagni, ingresso e terrazza coperta con vista sulla natura. Il progetto è stato concepito con particolare attenzione all'efficienza energetica e la posizione del terreno consente una vita tranquilla, con la vicinanza a tutti i servizi essenziali: mare, negozi, scuole e mezzi di trasporto. Questo terreno con la documentazione completata e un progetto pronto all'uso consente un rapido inizio dei lavori, senza ulteriori attese. Un'opportunità perfetta per chi desidera costruire la casa dei propri sogni o investire in una proprietà di lusso in una posizione ambita dell'Istria. Per maggiori informazioni e dettagli sul progetto, non esitate a contattarci. Gentili clienti, la commissione d'agenzia viene addebitata in conformità alle Condizioni Generali di Contratto: www.dux-nekretnine.hr/opci-uvjeti-poslovanja
ID: 1172251