Terreno - KANFANAR - 145.000 EUR
| Posizione | KANFANAR, Istria |
| Prezzo € | 145.000 |
| Superficie terrestre | 727 m2 |
| Distanza dal mare | 0 m |
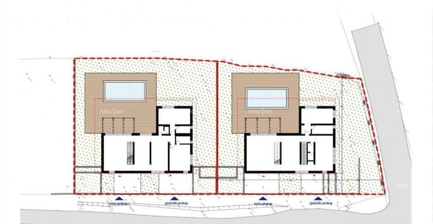
In vendita terreno edificabile con permesso di costruzione – Kanfanar Si vende un terreno edificabile in una zona tranquilla ai margini del paese di Kanfanar, situato all'estremità della zona edificabile. Il lotto ha accesso da una strada asfaltata, è pianeggiante ed è ideale per la costruzione. Si trova a soli 3 km dall'uscita dell'autostrada per Rovinj e, grazie alla sua eccellente posizione geografica, tutte le destinazioni in Istria – dal nord al sud della penisola – sono raggiungibili in 40 minuti di auto. Per il lotto è stata redatta la documentazione progettuale per la costruzione di una villa con piscina, e il permesso di costruzione è già stato rilasciato, il che consente l'inizio immediato dei lavori. C'è la possibilità di acquistare anche un ulteriore lotto adiacente a questo. Per ulteriori informazioni, si prega di contattare: Azra +385 91 611 5706 +385 98 420 885 azra@almadominvest.com
ID: 1232471