Tutti tipi
Case
Appartamenti
Terreni
Uffici
Provincia
...
Istria
Quarnaro
Spalato-Dalmazia-Sud
Ragusa
Sebenico-Dalmazia
Zara-Dalmazia-Nord
Zagabria
Bjelovarsko-bilogorska
Brodsko-posavska
Karlovac
Koprivniško-križevska
Krapinsko-zagorska
Ličko-senjska
Međimurje
Osijek-Baranja
Požeško-slavonska
Sisačko-moslavačka
Varaždinska
Virovitiško-podravska
Vukovarsko-srijemska
Zagabria-Dintorni
Comune
...
KRK
BAKAR
KRALJEVICA
RIJEKA
FUŽINE
RAB
NOVI VINODOLSKI
MRKOPALJ
MALI LOŠINJ
CRES
DELNICE
SKRAD
VRBOVSKO
MATULJI
KLANA
VINODOLSKA OPĆINA
KASTAV
BROD MORAVICE
MOŠĆENIČKA DRAGA
ČAVLE
CRIKVENICA
ČABAR
OPATIJA
KOSTRENA
JELENJE
LOKVE
VIŠKOVO
RAVNA GORA
LOVRAN
CittÃ
...
BANDEROVO
BELVEDER
BRAJDA-DOLAC
BRAŠĆINE-PULAC
BRESTOVICE
BULEVARD
CENTAR-SUŠAK
DRAGA
DRENOVA
GORNJA VEŽICA
GRBCI
KANTRIDA
KOZALA
KRIMEJA
KRNJEVO
MARČELJEVA DRAGA
MARTINKOVAC
MLAKA
OREHOVICA
PEĆINE
PEHLIN
PODMURVICE
POTOK
RIJEKA
SRDOČI
SVETI KUZAM
SVILNO
ŠKOLJIĆ
ŠKURINJE
ŠKURINJSKA DRAGA
TRSAT
TURNIĆ
VOJAK
ZAMET
Tipo
Tutti
Case
Appartamenti
Terreni
Uffici
Prezzo
da
a
Distanza dal mare (m)
da
a
Criterio
Più recenti
Meno recenti
Più costosi
Meno costosi
Cerca
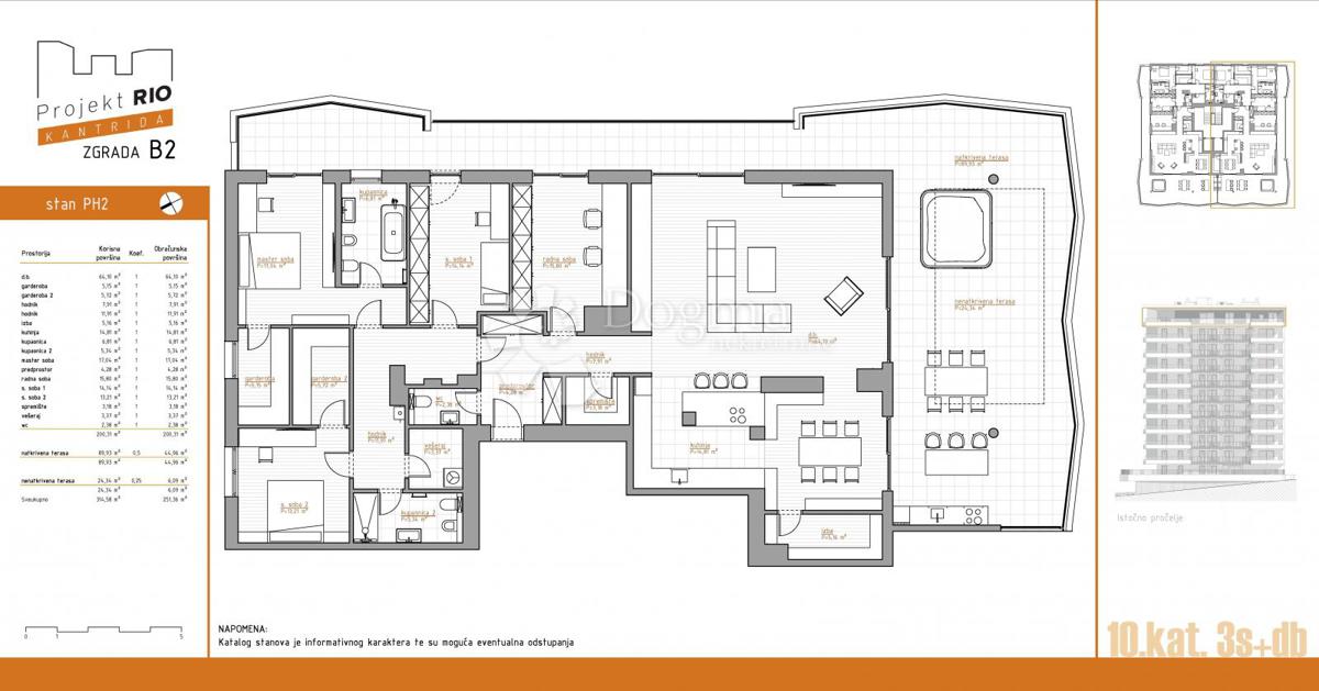
Appartamento - KANTRIDA - 1.128.606 EUR
Previous
Next
Posizione
KANTRIDA, RIJEKA, Quarnaro
Prezzo €
1.128.606
Superficie
251 m
2
Numero di camere
5
Vicino ai trasporti
Si
Distanza dal mare
0 m
ID: 1171720
Invia messaggio
Nome
E-mail
Tel.
8 + 4 =
Messaggio
Invia
Annulla