Casa - KAPRIJE - 488.000 EUR
| Posizione | KAPRIJE, ŠIBENIK, Sebenico-Dalmazia |
| Prezzo € | 488.000 |
| Superficie | 180 m2 |
| Numero di camere | 10 |
| Superficie terrestre | 340 m2 |
| Bagni | 4 |
| Distanza dal mare | 60 m |
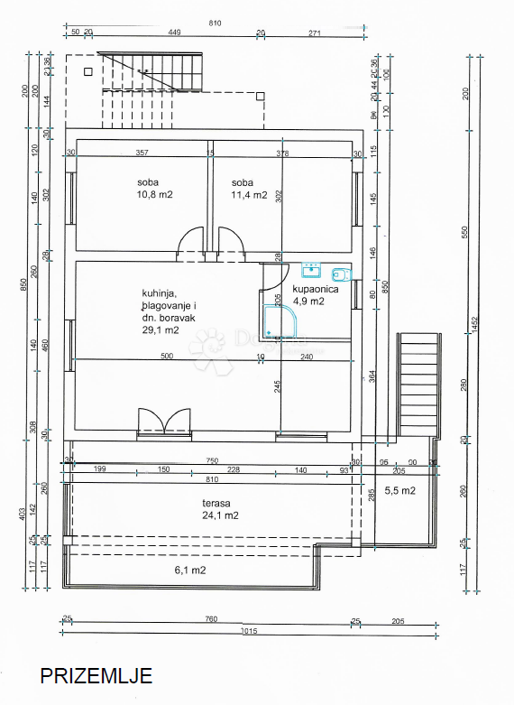
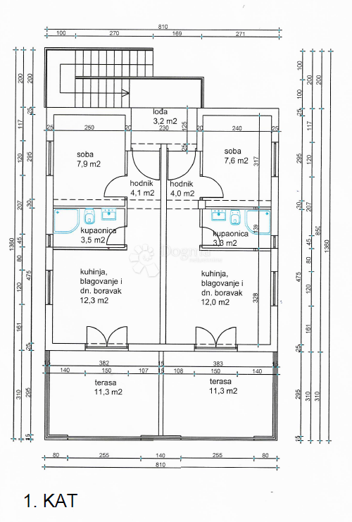
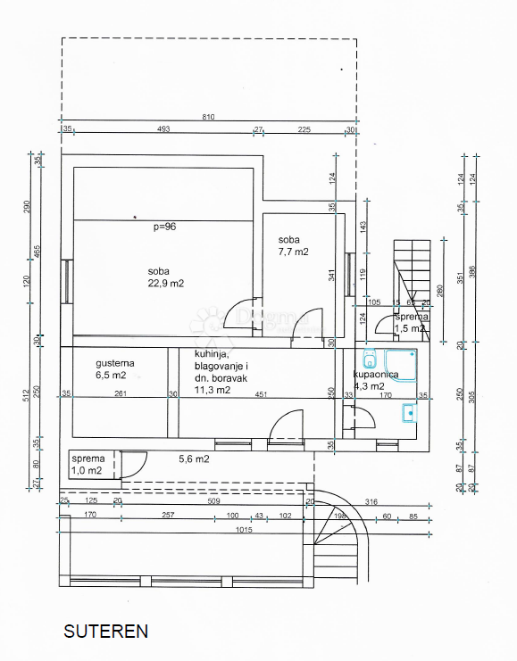
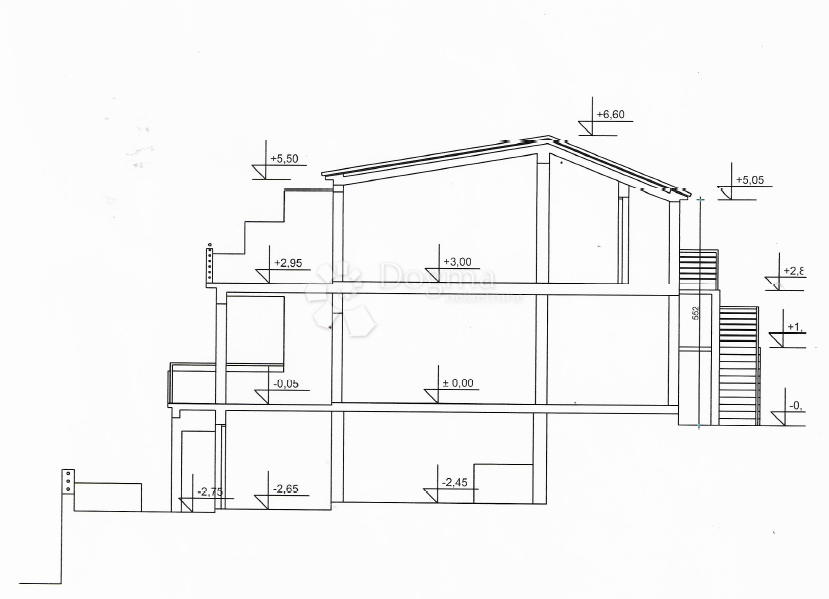
Casa sull’isola di Kaprije – 3 piani con vista panoramica sul mare Località: Isola di Kaprije, Arcipelago di Sebenico Distanza dal mare: 60 m Superficie della casa: 180 m² Superficie del terreno: 500 m² Descrizione dell’immobile: Questa affascinante casa su tre piani si trova a pochi passi dal mare e offre una vista spettacolare e libera sull’Adriatico. Ogni piano dispone di un ingresso indipendente, garantendo maggiore privacy e la possibilità di utilizzo separato o di affitto turistico. SEMINTERRATO: • 2 camere da letto • Bagno • Cucina, zona pranzo e soggiorno • Balcone con vista mare PIANO TERRA (parzialmente completato – possibilità di personalizzazione secondo i propri gusti) • 2 camere da letto • Bagno • Cucina, zona pranzo e soggiorno • Terrazza di 24 m² PRIMO PIANO (due appartamenti indipendenti) • Ogni appartamento: 1 camera da letto, bagno, cucina con zona pranzo, soggiorno e terrazza con vista diretta sul mare • Interni arredati in stile moderno Esterni: • Ampio giardino con tanto verde e piante mediterranee • Piccolo orto adatto per coltivare frutta, verdura o fiori • Cortile con due ripostigli e cisterna • Struttura coperta aggiuntiva con camino esterno – ideale per momenti conviviali e per gustare la cucina locale Perché scegliere Kaprije? Kaprije è un’autentica isola dalmata senza automobili – perfetta per chi cerca tranquillità, privacy e una fuga dalla vita quotidiana. L’isola è raggiungibile con collegamenti regolari in traghetto o aliscafo da Sebenico. È ideale per gli amanti della natura, del mare, della pesca e della vera atmosfera mediterranea. Ideale per: • Famiglie numerose • Investitori (affitto turistico) • Chiunque desideri un’oasi di pace sul mare Per ulteriori informazioni o per fissare una visita, non esitate a contattarci: NINA MRVICA Email: nina.mrvica@dogma-nekretnine.com Cell./WhatsApp: +385 91 157 1280 ILIJA RAČUNICA Email: ilija.racunica@dogma-nekretnine.com Cell./WhatsApp: +385 91 495 7567
ID: 1227470