Casa - KAŠTEL - 340.000 EUR
| Posizione | KAŠTEL, BUJE, Istria |
| Prezzo € | 340.000 |
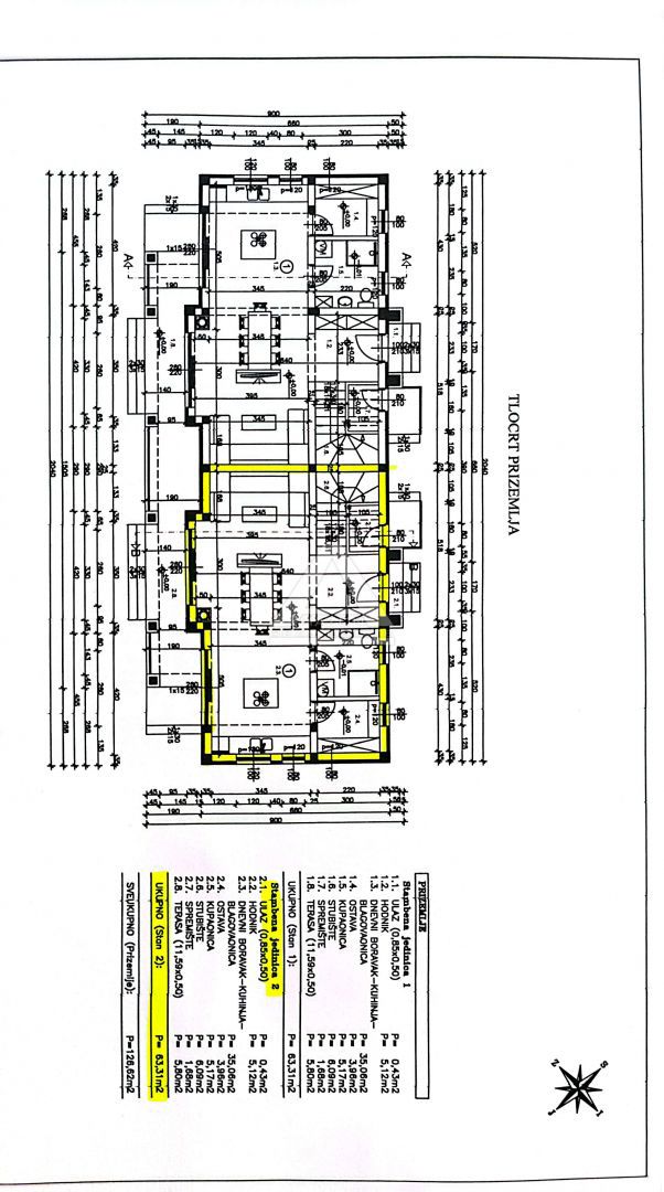
| Superficie | 114 m2 |
| Numero di camere | 2 |
| Superficie terrestre | 200 m2 |
| Bagni | 3 |
| Distanza dal mare | 0 m |
Castelnuovo, Buie - vendesi casa bifamiliare di nuova costruzione, 114 m2 netti, composta da piano terra con cucina, sala da pranzo, soggiorno, terrazza, bagno e ripostiglio, e al primo piano due terrazze, due camere da letto, due bagni. Il cortile è di 200 m2.
ID: 1233700