Casa - KLENOVICA - 1.200.000 EUR
| Posizione | KLENOVICA, NOVI VINODOLSKI, Quarnaro |
| Prezzo € | 1.200.000 |
| Superficie | 334 m2 |
| Numero di camere | 6 |
| Superficie terrestre | 463 m2 |
| Bagni | 4 |
| Distanza dal mare | 27000 m |
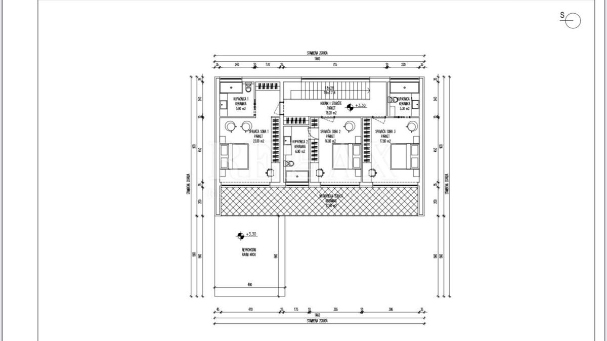
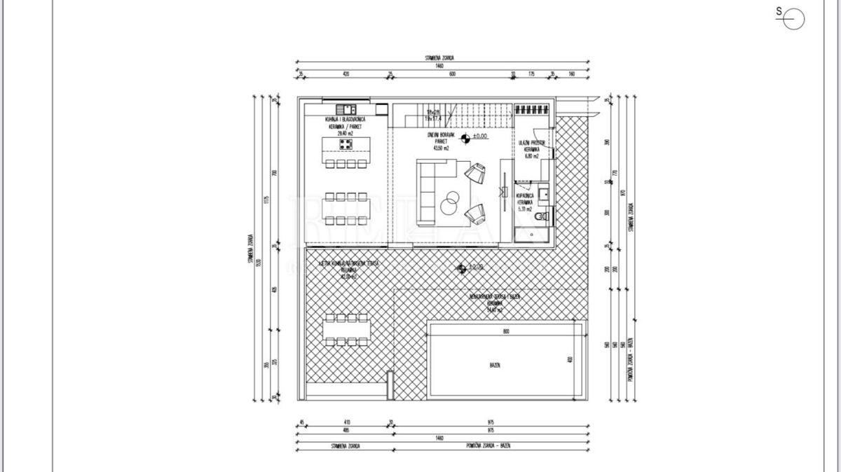
A Poljica, in un ambiente tranquillo e riservato, si trova una moderna villa in costruzione con una vista panoramica unica sul mare. Con una superficie totale di 334,40 m² e una disposizione ben studiata su tre piani, questa proprietà offre un'opportunità ideale per creare una casa personalizzata secondo i propri desideri. L'orientamento a sud garantisce un'abbondanza di luce naturale per tutto il giorno, mentre ogni piano offre viste spettacolari sul mare e sulla natura circostante. Il seminterrato comprende un garage, una lavanderia e uno spazio aggiuntivo per ripostiglio, offrendo funzionalità e organizzazione. Il piano terra è progettato come la parte centrale della casa, con un ampio soggiorno, una cucina collegata alla zona pranzo e l'accesso a una terrazza coperta accanto alla piscina, creando uno spazio perfetto per il relax e il divertimento. Il primo piano offre tre camere da letto confortevoli, ognuna con il proprio bagno e accesso a una loggia, ideale per un tranquillo riposo e privacy. Il futuro proprietario ha la possibilità di scegliere i materiali di finitura, come ceramiche, pavimentazioni e sanitari, per personalizzare completamente gli interni secondo le sue preferenze. La villa può essere acquistata anche nello stato attuale di costruzione.
ID: 1124057