Appartamento - KOSTRENA - 617.400 EUR
| Posizione | KOSTRENA, Quarnaro |
| Prezzo € | 617.400 |
| Superficie | 147 m2 |
| Numero di camere | 4 |
| Superficie terrestre | 151 m2 |
| Bagni | 3 |
| Vicino ai trasporti | Si |
| Distanza dal mare | 0 m |
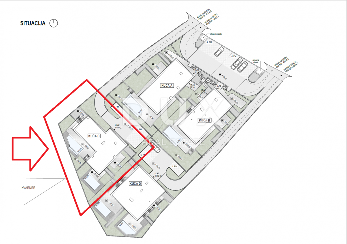
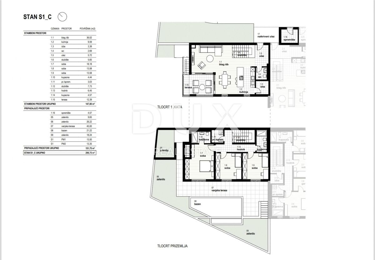
RIJEKA, KOSTRENA - esclusivo appartamento duplex di 147 m2, nuova costruzione, con splendida vista sul mare e piscina + giardino di 151,75 m2 - S1-C Offriamo un immobile dal design moderno ed elegante, con comfort e attrezzature di alta qualità, situato in una splendida posizione tranquilla, vicino ai mezzi pubblici, scuole, asili, centri commerciali e a dieci minuti di auto da Fiume. Il complesso di 4 edifici residenziali con un totale di 8 appartamenti si trova a nord della strada statale Adriatica, nella zona di "Zelena Kostrena", da cui si gode di una splendida vista sull'intero Quarnero. Nelle immediate vicinanze si trovano 10 chilometri di sentieri escursionistici, ciclabili e percorsi fitness ben curati che attraversano le parti più alte di Kostrena, dalla cima di Solin alla cima di Sopalj. L'accesso alle case avviene dalla strada superiore, dove è prevista la sistemazione e l'ampliamento della strada esistente. Ogni casa dispone di quattro posti auto esterni, oppure due posti auto per unità abitativa. Ogni casa è composta da due appartamenti. Gli appartamenti sui due lotti superiori sono situati uno sopra l'altro, mentre quelli sui due lotti inferiori sono situati uno accanto all'altro. Ogni appartamento ha una porzione di giardino. CASA C appartamento S1 - C: SPAZI ABITATIVI: - soggiorno/sala da pranzo 36,02 - cucina 9,59 - camera da letto 3,38 - bagno 2,69 - ingresso 5,72 - scala 5,65 - camera 18,18 - camera 13,58 - camera 13,58 - bagno 4,44 - lavanderia/ripostiglio 3,03 - scala 7,73 - disimpegno 6,45 - bagno 4,57 - terrazza 12,39 SPAZI ABITATIVI TOTALI: 147,00 m² SPAZI PERTINENZIALI - ripostiglio 4,57 - spazio verde 9,65 - spazio verde 26,22 - terrazza esterna 45,00 - piscina 21,22 - verde 18,24 - posto auto 1 13,50 - posto auto 2 13,35 SPAZI ASSOCIATI TOTALE: 151,75 m² APPARTAMENTO S1-C TOTALE: 298,75 m² Questo lussuoso appartamento è progettato per il massimo comfort. DOTAZIONI: La casa in cui si trova l'appartamento è ben costruita e lussuosamente arredata, tutti i materiali installati, i pavimenti e i rivestimenti sono di altissima qualità. - isolamento della facciata di 10 cm di spessore - riscaldamento a pavimento - pompe di calore - infissi in alluminio di alta qualità. L'appartamento dispone di giardino privato e 2 posti auto. PREZZO: Il prezzo indicato si riferisce a un immobile completamente completato chiavi in mano, senza mobili. Il prezzo è comprensivo di IVA, l'acquirente è esente dal pagamento dell'imposta sugli immobili. In caso di acquisto a una società registrata in Croazia, è possibile ottenere il rimborso completo dell'IVA dopo la vendita. Proprietà pulita e ordinata. Certamente una splendida proprietà per una lussuosa vita familiare, ma adatta anche come investimento per il turismo d'élite. IMMOBILE UNICO CHE MERITA SICURAMENTE LA VOSTRA ATTENZIONE IN UNA POSIZIONE OTTIMA!!! KOSTRENA Kostrena è un'antica e rinomata cittadina costiera, menzionata per la prima volta all'inizio del XV secolo. Ottenne la sua prima indipendenza comunale nel 1874, ma la mantenne per un periodo molto breve, solo due anni. È divisa in due parti, Santa Lucia e Santa Barbara, secondo i nomi di due chiese presenti nella sua area. Kostrena si trova nelle immediate vicinanze della città di Fiume, incorniciata dalla baia di Martinšćica e dalla baia di Buccari. La penisola di Kostrena è lunga circa 10 chilometri e degrada dolcemente verso il mare. Lungo tutta la sua lunghezza si trovano bellissime spiagge, frequentate da migliaia di bagnanti durante l'estate. I più famosi e visitati sono quelli nella baia di Žurkovo, seguiti da Smokvinovo, Svežanj, Spužvina, Podražica, Nova Voda e Perilo. Kostrena è composta da una ventina di insediamenti, molti dei quali prendono il nome da famiglie, e oggi i più popolati sono Vrh Martinšćice, Glavani, Sv. Lucija, Rožmanići, Doričići e Paveki. Una caratteristica zona carsica con vegetazione mediterranea e la famosa gromača di Kostrena, e un clima mite che a volte lascia spazio a forti raffiche di bora, sono le caratteristiche di questa regione. Gentili clienti, la commissione d'agenzia viene addebitata in conformità con i Termini e Condizioni Generali: www.dux-nekretnine.hr/opci-uvjeti-poslovanja Gentili potenziali acquirenti, inquilini e locatari, la visione dell'immobile di vostro interesse e per il quale siete interessati è possibile solo ed esclusivamente tramite la sottoscrizione di un Contratto di Mediazione Immobiliare, al fine di tutelare il proprietario dell'immobile da visite di persone non registrate e in conformità con la Legge sulla Protezione dei Dati e la Legge sull'Intermediazione Immobiliare. Al momento della visita di ciascun immobile, il potenziale acquirente/inquilino/locatario è tenuto a compilare e firmare un Contratto di Mediazione Immobiliare, che specifica quanto segue: - informazioni di base sul potenziale acquirente/inquilino/locatario - informazioni di base sull'agenzia - importo della commissione d'agenzia La commissione d'agenzia per l'acquirente è pari al 3% (+25% IVA) del prezzo di acquisto totale concordato. La commissione d'agenzia per l'inquilino è pari a un canone mensile (+25% IVA).
ID: 1249855