Appartamento - KOSTRENA - 666.000 EUR
| Posizione | KOSTRENA, Quarnaro |
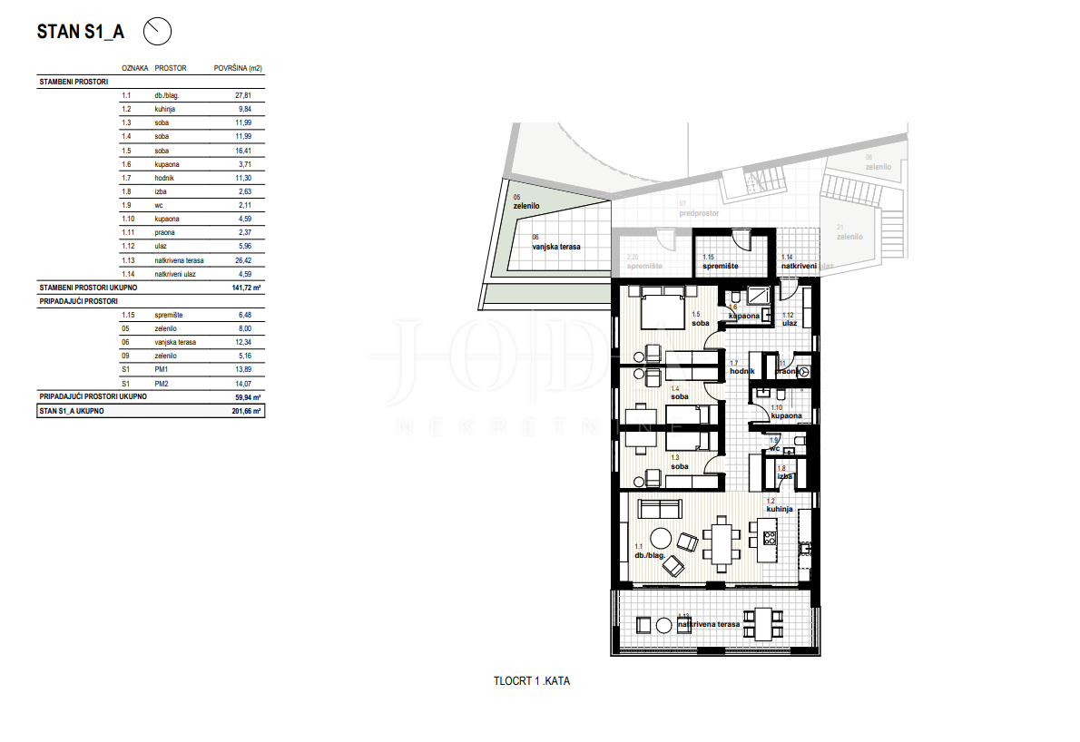
| Prezzo € | 666.000 |
| Superficie | 141 m2 |
| Numero di camere | 4 |
| Superficie terrestre | 60 m2 |
| Bagni | 3 |
| Vicino ai trasporti | Si |
| Distanza dal mare | 1200 m |
Vendiamo un appartamento di lusso con una superficie totale di 142 m² in una zona verde e tranquilla di Kostrena. L'appartamento si trova in un edificio di nuova costruzione con una splendida vista mare e comprende terrazze, un giardino paesaggistico e attrezzature tecniche di alta qualità. L'appartamento è composto da: - soggiorno e sala da pranzo con cucina - tre camere da letto, - due bagni, un WC aggiuntivo, un corridoio e una terrazza L'appartamento dispone dei seguenti spazi annessi: - due terrazze e un giardino paesaggistico - due posti auto esterni - ripostiglio L'immobile è dotato di: - riscaldamento a pavimento tramite pompa di calore - aria condizionata - infissi in alluminio - porte blindate e materiali di finitura di alta qualità Viene venduto chiavi in mano, senza mobili. Il venditore è registrato IVA. Completamento previsto dei lavori nel 2026.
ID: 1210620