Appartamento - KOSTRENA - 884.100 EUR
| Posizione | KOSTRENA, Quarnaro |
| Prezzo € | 884.100 |
| Superficie | 210 m2 |
| Numero di camere | 5 |
| Superficie terrestre | 350 m2 |
| Bagni | 3 |
| Vicino ai trasporti | Si |
| Distanza dal mare | 0 m |
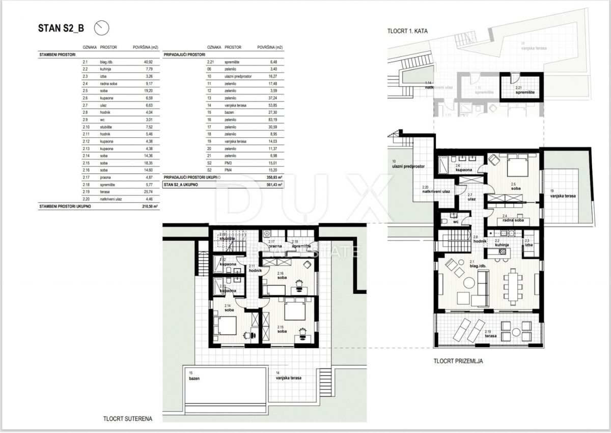
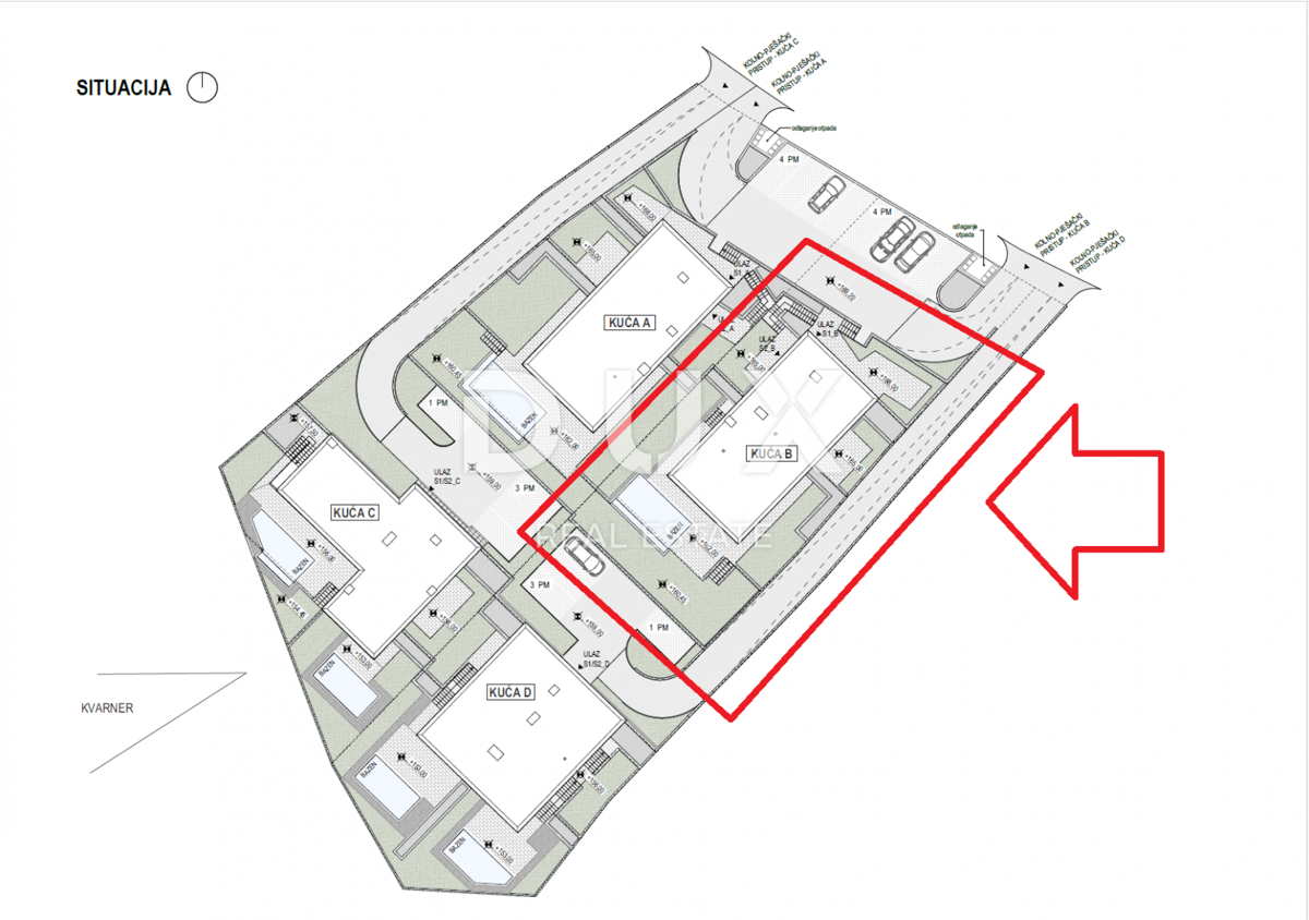
RIJEKA, KOSTRENA - esclusivo appartamento duplex di 210,50 m2, nuova costruzione, con splendida vista mare e piscina + giardino di 350,93 m2 - S2-B Offriamo un immobile dal design moderno ed elegante, con comfort e dotazioni di alta qualità, situato in una splendida posizione tranquilla, vicino ai mezzi pubblici, scuole, asili, centri commerciali e a dieci minuti di auto da Fiume. Il complesso di 4 edifici residenziali con un totale di 8 appartamenti si trova a nord della strada statale Adriatica, nella zona di "Zelena Kostrena", da cui si gode di una splendida vista sull'intero Quarnero. Nelle immediate vicinanze si trovano 10 chilometri di sentieri escursionistici, ciclabili e percorsi fitness ben curati che attraversano le parti più alte di Kostrena, dalla cima di Solin alla cima di Sopalj. L'accesso alle case avviene dalla strada superiore, dove è prevista la sistemazione e l'ampliamento della strada esistente. Ogni casa dispone di quattro posti auto esterni, ovvero due posti auto per unità abitativa. Ogni casa è composta da due appartamenti. Gli appartamenti sui due lotti superiori sono situati uno sopra l'altro, mentre quelli sui due lotti inferiori sono situati uno accanto all'altro. Ogni appartamento dispone di una porzione di giardino. CASA B appartamento S2 - B: SPAZI ABITATIVI: - soggiorno/sala da pranzo 40,92 - cucina 7,79 - dispensa 3,26 - studio 9,17 - camera 19,20 - bagno 6,59 - ingresso 6,63 - disimpegno 4,04 - WC 3,01 - scala 7,52 - disimpegno 5,46 - bagno 4,38 - bagno 4,38 - camera 14,36 - camera 18,35 - camera 14,60 - lavanderia 4,87 - ripostiglio 5,77 - terrazza 25,74 - ingresso coperto 4,46 SPAZI ABITATIVI TOTALI: 210,50 m² SPAZI COLLEGATI: - Ripostiglio 6,48 - Verde 3,40 - Ingresso 16,27 - Verde 17,48 - Verde 3,59 - Verde 37,24 - Terrazza esterna 53,85 - Piscina 27,30 - Verde 83,19 - Verde 30,59 - Verde 8,95 - Terrazza esterna 14,03 - Verde 11,37 - Verde 6,98 - Posto auto 3 15,01 - Posto auto 4 15,20 SPAZI ASSOCIATI TOTALE: 350,93 m² APPARTAMENTO S2-B TOTALE: 561,43 m² Questo lussuoso appartamento è progettato per il massimo comfort. DOTAZIONI: La casa in cui si trova l'appartamento è ben costruita e lussuosamente arredata, tutti i materiali installati, i pavimenti e i rivestimenti sono di altissima qualità. - Isolamento della facciata di 10 cm di spessore - Riscaldamento a pavimento - Pompe di calore - Serramenti in alluminio di alta qualità. L'appartamento dispone di giardino privato e 2 posti auto. PREZZO: Il prezzo indicato si riferisce a un immobile completamente rifinito chiavi in mano, senza mobili. Il prezzo include l'IVA, l'acquirente è esente dal pagamento dell'imposta sugli immobili. In caso di acquisto da una società registrata in Croazia, è possibile ottenere il rimborso completo dell'IVA dopo la vendita. Immobile pulito e ordinato. Certamente una splendida proprietà per una lussuosa vita familiare, ma adatta anche come investimento per il turismo d'élite. UN IMMOBILE UNICO CHE MERITA SICURAMENTE LA VOSTRA ATTENZIONE IN UNA POSIZIONE OTTIMA!!! KOSTRENA Kostrena è un'antica e rinomata cittadina costiera, menzionata per la prima volta all'inizio del XV secolo. Ottenne la sua prima indipendenza comunale nel 1874, ma la mantenne per un periodo molto breve, solo due anni. È divisa in due parti, Santa Lucia e Santa Barbara, secondo i nomi di due chiese presenti nella sua area. Costrena si trova nelle immediate vicinanze della città di Fiume, incorniciata dalla baia di Martinšćica e dalla baia di Buccari. La penisola di Kostrena è lunga circa 10 chilometri e degrada dolcemente verso la costa. Lungo tutta la sua lunghezza si trovano splendide spiagge, frequentate da migliaia di bagnanti durante l'estate. Le più famose e frequentate sono quelle della baia di Žurkovo, seguite da Smokvinovo, Svežanj, Spužvina, Podražica, Nova Voda e Perilo. Costrena è composta da una ventina di insediamenti, molti dei quali prendono il nome da famiglie, e oggi i più popolati sono Vrh Martinšćica, Glavani, Sv. Lucija, Rožmanići, Doričići e Paveki. La caratteristica zona carsica con la sua vegetazione mediterranea e la famosa gromača di Kostrena, e il clima mite che a volte lascia spazio a forti raffiche di bora, sono le caratteristiche di questa regione. Gentili clienti, la commissione di agenzia viene addebitata in conformità con i Termini e Condizioni Generali: www.dux-nekretnine.hr/opci-uvjeti-poslovanja Gentili potenziali acquirenti, inquilini e locatari, la visione dell'immobile di vostro interesse è possibile solo ed esclusivamente con la sottoscrizione di un Contratto di Mediazione Immobiliare, al fine di tutelare il proprietario dell'immobile da visite di persone non registrate, e in conformità con la Legge sulla Protezione dei Dati e la Legge sulla Mediazione Immobiliare. Al momento della visita di ogni immobile, il potenziale acquirente/inquilino/conduttore è tenuto a compilare e firmare il Contratto di Mediazione Immobiliare, che specifica quanto segue: - informazioni di base sul potenziale acquirente/inquilino/conduttore - informazioni di base sull'agenzia - importo della commissione di agenzia La commissione di agenzia per l'acquirente è pari al 3% (+25% IVA) del prezzo di acquisto totale concordato. La commissione di agenzia per il conduttore è pari a un canone mensile (+25% IVA).
ID: 1249853