Casa - KRASICA - 153.000 EUR
| Posizione | KRASICA, BUJE, Istria |
| Prezzo € | 153.000 |
| Superficie | 75 m2 |
| Numero di camere | 2 |
| Distanza dal mare | 15000 m |
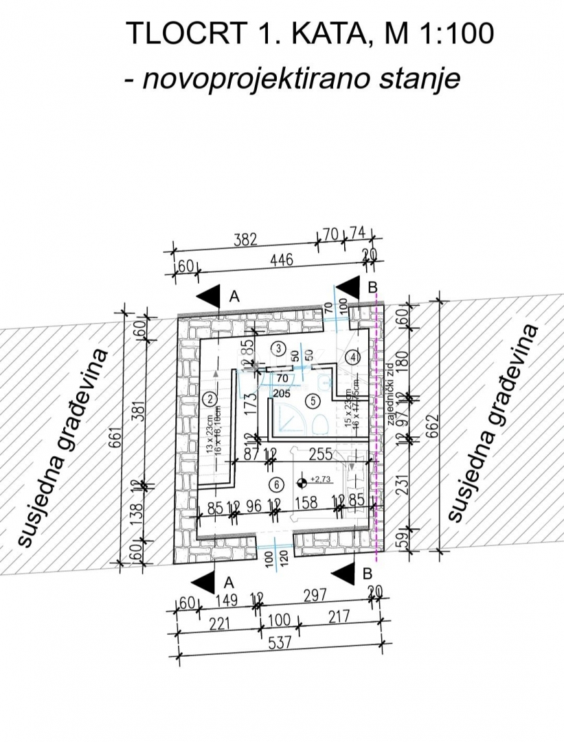
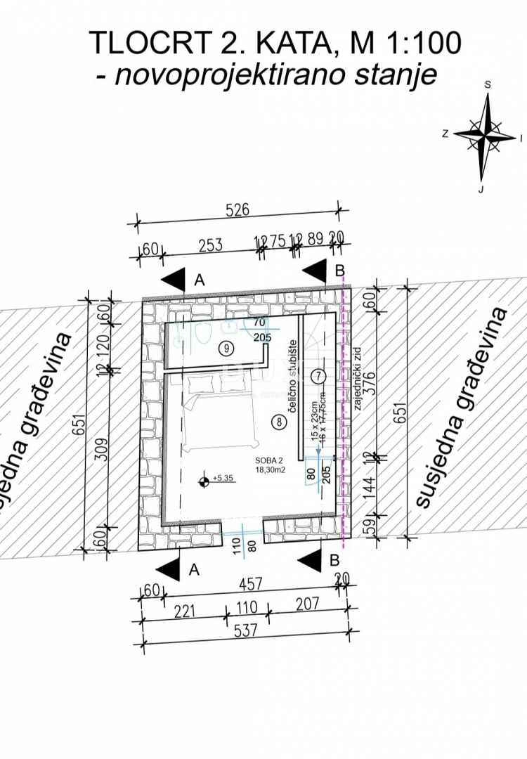
ISTRIA, KRASICA - Un'autentica casa istriana da ristrutturare Nel cuore del verde paesaggio dell'Istria nord-occidentale, nel tranquillo villaggio di Krasica, non lontano da Buie, si trova questa affascinante casa in pietra con vista panoramica sui dintorni e sulla valle del fiume Quieto: un'opportunità perfetta per chi cerca un connubio tra tradizione, natura e silenzio. Krasica è nota per le sue eccellenti cantine, gli uliveti e la gastronomia istriana, ed è qui che si tiene il prestigioso evento "Oleum Olivarum", una delle più importanti feste dell'olio d'oliva della regione, un ulteriore segno di autenticità e cultura locale. La casa è stata parzialmente ristrutturata, con lavori di costruzione chiave già completati: - fondamenta, due solai del soppalco, tetto e lamiera - impianti idrici, elettrici e di scarico - dispone di tutta la documentazione necessaria: rilievi geodetici, permesso di costruire, contributi per le utenze, avviso di inizio lavori e supervisione - cosa rara nell'offerta di immobili simili - La casa comprende il piano terra, il primo e il secondo piano, e i cortili anteriore e posteriore, con una superficie totale di: - casa: 75 m² - cortile: 97 m² La disposizione degli ambienti è disponibile nei disegni di progetto e anche l'ulteriore rudere accanto alla casa è in fase di ristrutturazione, il che apre la possibilità di ampliamento o contenuti aggiuntivi. La posizione offre il perfetto equilibrio tra tranquillità e accessibilità: il mare dista 15 km, mentre destinazioni famose come Grisignana (6 km), la cantina Clai (1,5 km) e Stara škola (2,8 km) sono facilmente raggiungibili. Questa proprietà rappresenta un'opportunità eccezionale per creare la casa dei propri sogni in Istria, sia per esigenze personali che come autentico progetto turistico in una regione che attrae sempre più ospiti desiderosi di natura, cultura ed esperienze locali. Gentili clienti, la commissione di agenzia viene addebitata in conformità con i Termini e Condizioni Generali: www.dux-nekretnine.hr/opci-uvjeti-poslovanja
ID: 1218568