Casa - KRASICA - 199.000 EUR
| Posizione | KRASICA, BUJE, Istria |
| Prezzo € | 199.000 |
| Superficie | 140 m2 |
| Numero di camere | 4 |
| Superficie terrestre | 300 m2 |
| Bagni | 2 |
| Vicino alla spiaggia | Si |
| Distanza dal mare | 0 m |
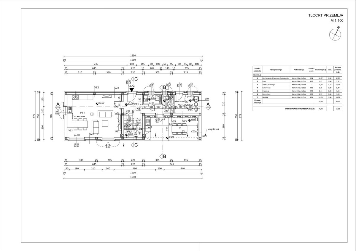
Questa splendida casa indipendente, ancora in fase di completamento, è situata in una posizione idilliaca nei pressi della città di Buie. Situata in una zona tranquilla, a pochi passi da Buie, questa splendida casa indipendente viene venduta allo stato grezzo. La casa, con una superficie di 140 m², si sviluppa su due piani. Al piano terra si trovano un bagno di servizio, una cucina, una sala da pranzo e un soggiorno con accesso al giardino di 250 m². Il giardino è predisposto per una piscina, mentre i locali tecnici e il ripostiglio hanno un ingresso esterno separato. Al piano superiore si trovano due camere da letto, ciascuna con il proprio bagno e la propria loggia. C'è anche un ulteriore locale destinato a biblioteca, che il futuro proprietario può organizzare secondo i propri gusti. Per maggiori dettagli su questa casa, non esitate a contattarci.
ID: 1217405