Appartamento - KRK - 395.000 EUR
| Posizione | KRK, Quarnaro |
| Prezzo € | 395.000 |
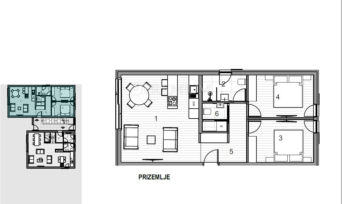
| Superficie | 61 m2 |
| Numero di camere | 3 |
| Bagni | 2 |
| Vicino ai trasporti | Si |
| Distanza dal mare | 600 m |
Città di Krk, appartamento di lusso in vendita, a soli 600 m dal mare e da tutti i comfort necessari! L'appartamento, delle dimensioni di 61 mq, si trova al piano terra di un edificio residenziale attualmente in costruzione. Si compone di ingresso, bagno per gli ospiti, lavanderia, 2 camere da letto, cucina con zona pranzo e soggiorno con accesso al terrazzo. Una particolarità di questo appartamento è la sua disposizione degli ambienti funzionale e spaziosa. Nella costruzione sono stati utilizzati materiali di alta qualità, inclusi sanitari di prima qualità, infissi in alluminio, riscaldamento a pavimento e aria condizionata in tutte le stanze. L'appartamento è dotato di una parte di giardino e di due posti auto. In vendita come immobile "chiavi in mano". Posizione privilegiata, a 600 m dal mare!
ID: 983882