Casa - KRK - 1.500.000 EUR
| Posizione | KRK, Quarnaro |
| Prezzo € | 1.500.000 |
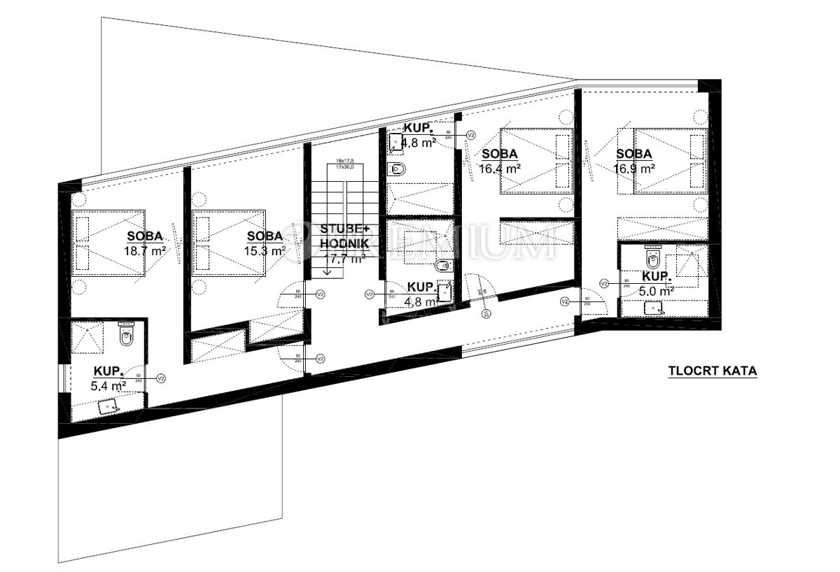
| Superficie | 238 m2 |
| Numero di camere | 5 |
| Superficie terrestre | 605 m2 |
| Bagni | 5 |
| Distanza dal mare | 3500 m |
Nei dintorni della città di Krk, in vendita, imponente villa con piscina, in una posizione tranquilla, ai margini della zona di costruzione, in costruzione! La villa con una superficie di 238 mq è composta da un piano terra e un primo piano, collegati da scala interna. Al piano terra della casa si trovano ingresso, corridoio, ripostiglio, zona benessere, cucina open space con sala da pranzo e soggiorno, con accesso al giardino con piscina riscaldata e solarium. Il primo piano è composto da un disimpegno, quattro bagni e quattro camere da letto, tre delle quali hanno accesso ad un terrazzo con una bellissima vista sul verde. La casa sarà dotata di videosorveglianza, sistema di allarme, pompa di calore, porte blindate, pavimenti di alta qualità, infissi in alluminio e sarà completamente climatizzata. C'è anche un garage per parcheggiare un'auto e un posto auto esterno sul terreno del giardino. Posizione tranquilla, ideale per le vacanze, ai margini della zona di costruzione! Vendita chiavi in mano, ultimazione lavori prevista primavera 2025. L’immobile è soggetto al sistema IVA, pertanto l’acquirente non paga l’imposta di trasferimento immobiliare del 3 %.
ID: 1068518