Casa - KRK - 260.000 EUR
| Posizione | KRK, Quarnaro |
| Prezzo € | 260.000 |
| Superficie | 197 m2 |
| Numero di camere | 8 |
| Superficie terrestre | 342 m2 |
| Bagni | 2 |
| Distanza dal mare | 1000 m |
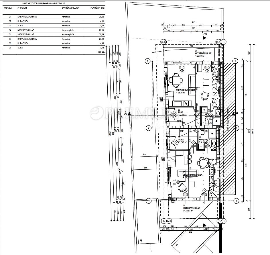
Dintorni della città di Krk – casa indipendente con progetto e permesso di costruzione In vendita una casa indipendente nei dintorni della città di Krk, ideale come investimento, con permesso di costruzione valido e progetto di ristrutturazione. L’immobile si trova su un terreno di 401 m², mentre la casa si sviluppa su piano terra e primo piano, con una superficie lorda complessiva di 197 m². Attualmente il piano terra è adibito a deposito, mentre al primo piano si trovano due camere da letto, un bagno, una cucina con zona pranzo e soggiorno. Secondo il progetto di ristrutturazione è prevista una casa indipendente con due unità abitative, disposta su piano terra e primo piano, con terrazze sul tetto, per una superficie complessiva di 277 m². Ogni unità abitativa è progettata come appartamento su due livelli con zona giorno e zona notte funzionalmente e chiaramente separate. Il piano terra comprende ingresso, soggiorno con cucina e zona pranzo, bagno e una camera da letto, mentre il primo piano dispone di tre camere da letto, due bagni e un disimpegno, con relativi balconi. Al piano di copertura, ogni unità dispone di una propria terrazza sul tetto, progettata come spazio esterno privato per il relax e la vita all’aperto. Dalle terrazze sul tetto è prevista una vista mare. All’interno della proprietà sono garantiti due posti auto per ciascuna unità abitativa. La casa si trova in una zona tranquilla, nelle immediate vicinanze di tutti i servizi necessari, a soli 1 km dal mare.
ID: 1251625