Terreno - KRK - 850.000 EUR
| Posizione | KRK, Quarnaro |
| Prezzo € | 850.000 |
| Superficie | 558 m2 |
| Distanza dal mare | 0 m |
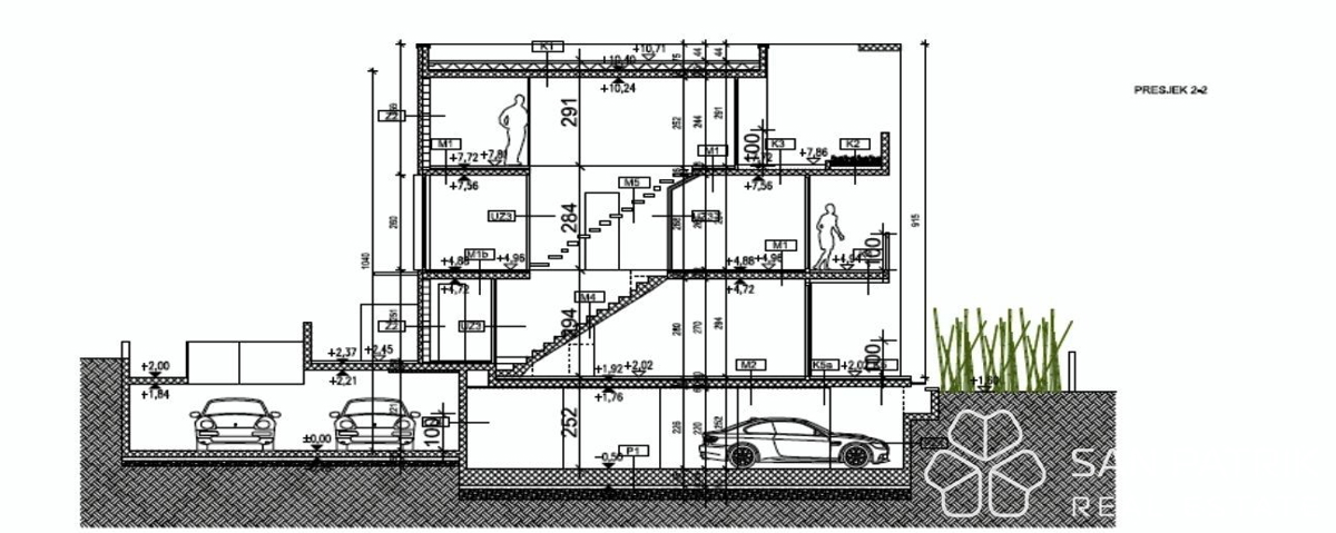
In una posizione vicino al centro della città di Krk, è in vendita un terreno edificabile con progetto approvato per un edificio residenziale indipendente con 4 unità abitative autonome, ciascuna con ingresso separato. Per ogni unità è prevista la seguente disposizione: al piano terra si trovano il soggiorno, un piccolo bagno e una terrazza, mentre al primo piano due camere da letto e un bagno. Al secondo piano si trova una galleria con possibile configurazione sauna, jacuzzi e palestra o camera da letto, bagno con WC e una grande terrazza con barriera verde. Ogni unità dispone di 2 posti auto nel garage sotterraneo e un posto auto nel parcheggio esterno. Dotazioni previste: infissi in PVC con tapparelle elettriche, riscaldamento a pavimento in tutta l’unità e pompe di calore, porte blindate, videocitofono, sistema di allarme, stazione di ricarica per auto elettriche in garage e nel parcheggio esterno, gestione intelligente degli apparecchi tramite applicazione mobile. Il progetto è stato realizzato fino alla fase di grezzo avanzato. Oggetto della vendita sono le quote societarie della società proprietaria dell’immobile. La città di Krk, la più grande dell’isola, dispone di un’infrastruttura urbana completa con ospedale, scuole, negozi e tutti i servizi quotidiani nel centro. L’isola di Krk si trova nella parte settentrionale del Mar Adriatico. È collegata strategicamente tramite trasporti - traghetti via mare, ponte via terra e aeroporto internazionale. SAN PATRIK PREMIUM STANDARD L'immobile è rappresentato dall'agenzia boutique San Patrik che offre consulenza professionale e un approccio individuale a ogni acquirente. Il nostro ruolo è garantire una documentazione verificata, completa sicurezza legale e un processo di compravendita trasparente con accesso a tutte le informazioni chiave prima di prendere la decisione di acquisto.
ID: 1244716