Casa - LABIN - 747.000 EUR
| Posizione | LABIN, Istria |
| Prezzo € | 747.000 |
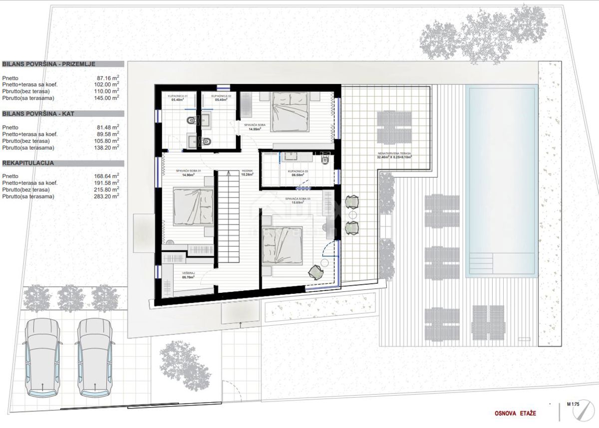
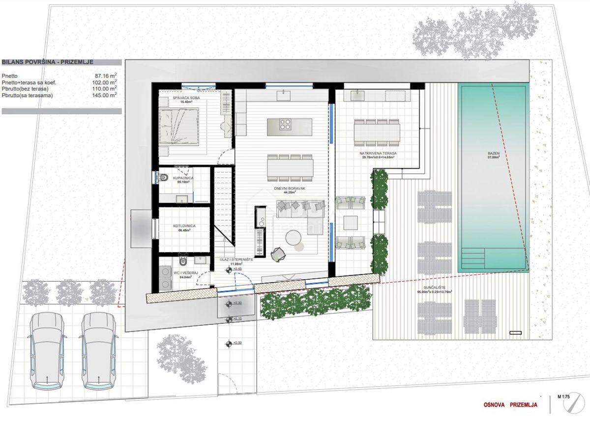
| Superficie | 283 m2 |
| Numero di camere | 5 |
| Superficie terrestre | 601 m2 |
| Bagni | 5 |
| Distanza dal mare | 8000 m |
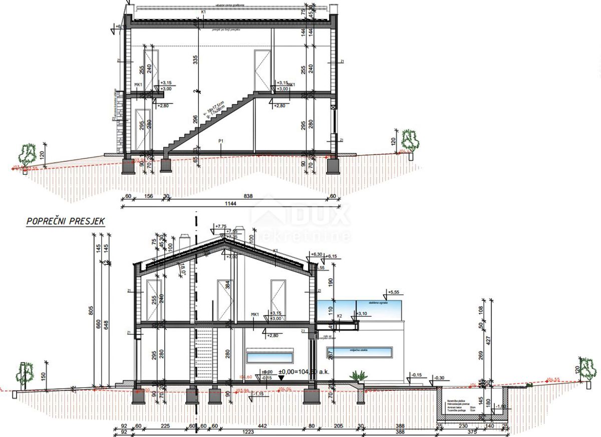
ISTRIA, LABIN - Casa dal design contemporaneo con piscina Sulla costa sud-orientale dell'Istria, dove le verdi colline incontrano il mare, dove natura e patrimonio si incontrano, si trovano due città di dimensioni simili ma con caratteristiche diverse ma reciprocamente complementari: Labin e Rabac. La pittoresca cittadina di Labin sorge su una collina alta 320 metri, a soli cinque chilometri dalle spiagge di ghiaia bianca di Rabac. Intrecciata con la ricca storia e l'attività mineraria che ha segnato questa regione, Albona, che per un breve periodo fu dichiarata repubblica indipendente, è oggi un'affascinante città piena di contraddizioni; vecchio e nuovo, storia e presente, turismo e arte. Non lontano dalla città di Albona è in vendita una casa dal design contemporaneo con piscina. La casa in un insediamento idilliaco è stata progettata nel rispetto della professione, delle norme legali e della documentazione di pianificazione territoriale ed è stata costruita secondo i più alti standard di edilizia residenziale. Con la sua architettura docile non disturba l'ambiente, ma crea una sinergia tra l'ambiente naturale, l'architettura tradizionale istriana e il design moderno. La tradizione è simboleggiata dalla pietra e dal tetto a due falde, mentre l'espressione contemporanea è rappresentata da una parete di vetro di grande formato. La semplicità progettuale dell'architettura tradizionale ha portato alla creazione di una planimetria compatta e di uno spazio piacevole e arioso. Gli interni moderni, in cui i colori tenui e chiari della terra si mescolano con l'elegante nero, sono suddivisi su due piani con una superficie netta totale di 191,58 m² e trasmettono eleganza e semplicità e offrono un elevato livello di comfort. Il piano terra è costituito da un open concept space che unisce soggiorno, sala da pranzo e cucina con accesso ad un ampio terrazzo coperto contenente una cucina estiva. La planimetria del piano terra è completata da una camera da letto con il proprio bagno, un bagno per gli ospiti e un locale caldaia. Al piano superiore ci sono tre camere da letto con bagno privato, una lavanderia ed uno spazioso terrazzo. Il cortile è completamente recintato ed elegantemente arredato con prato e piante mediterranee, e lo spazio centrale è occupato da una piscina di 37 mq con zona solarium. Questa proprietà perfettamente integrata è un'opportunità eccezionale per una vita familiare confortevole e un investimento nel settore degli affitti turistici. Gentili clienti, la commissione d'agenzia viene addebitata in conformità con i Termini e Condizioni Generali: www.dux-nekretnine.hr/opci-uvjeti-poslovanja
ID: 1068364