Casa - LABIN - 750.000 EUR
| Posizione | LABIN, Istria |
| Prezzo € | 750.000 |
| Superficie | 283 m2 |
| Numero di camere | 5 |
| Superficie terrestre | 2000 m2 |
| Bagni | 5 |
| Distanza dal mare | 10000 m |
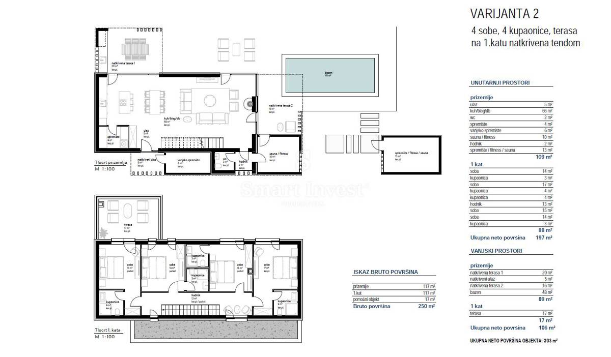
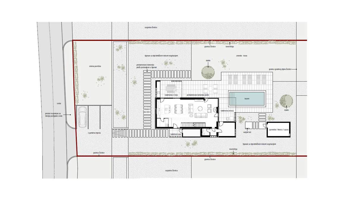
ISTRIA - zona LABIN, in vendita è una villa moderna con piscina e ampio giardino in una posizione bella e tranquilla in un piccolo villaggio istriano vicino a Labin. La villa della superficie netta complessiva di 283 mq è ubicata su un lotto di terreno della superficie totale di 2386 mq (585 mq di cui 460 mq di aree verdi, e 125 mq di terrazze esterne pavimentate, e 79 mq di parcheggio). Al piano terra si trovano un ingresso coperto e ripostiglio esterno, un soggiorno con cucina e sala da pranzo con accesso a due terrazzi: un terrazzo coperto di 20 mq con cucina estiva e un terrazzo coperto di 16 mq. C'è anche un ripostiglio, corridoio, WC, sauna/sala fitness. Al primo piano troviamo un disimpegno e 4 camere da letto con bagno privato, due delle quali hanno accesso ad un ampio terrazzo di 17 mq. Ogni casa ha possibilità di adattamento ed è possibile realizzare tre o quattro camere da letto. La casa sarà dotata di pompa di calore, riscaldamento a pavimento, infissi esterni in alluminio, ecc. C'è la possibilità di scegliere i materiali di finitura. Nel giardino c'è una piscina di 48 mq, un edificio ausiliario che può essere utilizzato come ripostiglio o spazio per fitness e sauna, e 3 posti auto. Sulla parte non edificabile del giardino (1488 m2) possono essere realizzate secondo i desideri del cliente (a pagamento) strutture aggiuntive come un parco, un parco giochi per bambini, campi sportivi e simili. Le case si trovano in una posizione bella e tranquilla immersa nel verde, nelle vicinanze si trovano case vacanza ben arredate. Il centro di Labina e tutti i servizi necessari distano solo 3 km, mentre il mare e le bellissime spiagge della famosa Rabac sono raggiungibili in 15 minuti di auto (10 km). Per ulteriori informazioni e una visita, chiamare il numero +385/99/320-0008
ID: 977828